EasyManua.ls Logo

Sime AR Series - Page 34

Sime AR Series
Print Icon
To Next Page IconTo Next Page
To Next Page IconTo Next Page
To Previous Page IconTo Previous Page
To Previous Page IconTo Previous Page
Loading...
(13), en bloquant le tout avec la bar-
rette d'arrêt des capillaires fournie à
la livraison;
enlever le bouchon (14) et visser la
sonde de l'hydromètre avec soupape
de retenue;
terminer l’assemblage en fixant le
couvercle (12) sur les côtés.
NOTE: Dans les documents de la
chaudière, conserver le "Certificat
d'essai" inséré dans la chambre de
combustion.
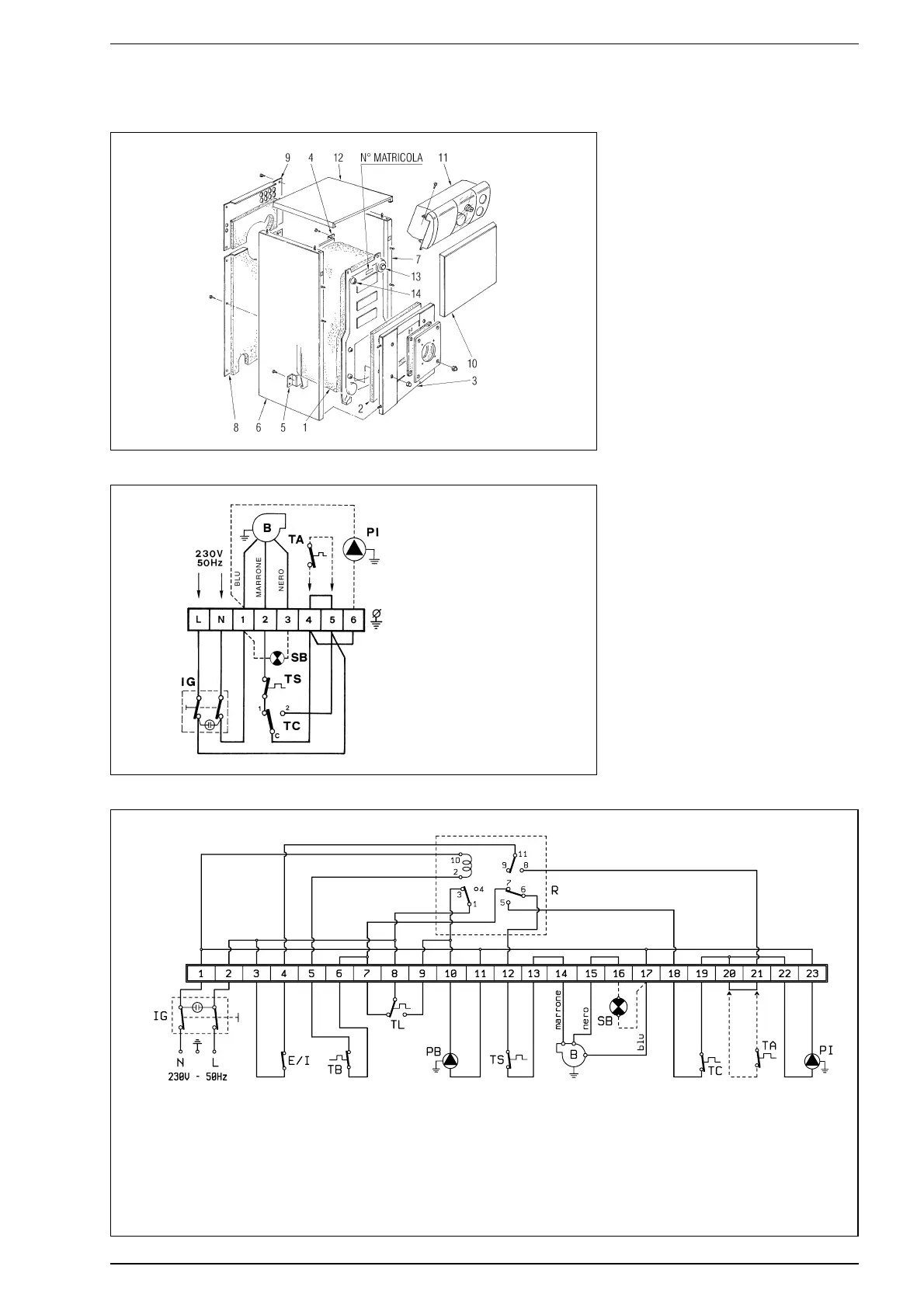
2.6 BRANCHEMENT
ELECTRIQUE
La chaudière est munie d’un câble
électrique de alimentation et doit être
alimentée avec une tension monopha-
de 230V - 50Hz par l’intermédiaire
d’un interrupteur général protégé par
des fusibles.
Le thermostat d’ambiance, nécessai-
re pour obtenir une meilleure régula-
tion de la température, devra être
relié comme indiqué sur les schémas
(fig. 6).
Raccorder ensuite le câble d'alimen-
tation du brûleur et de la pompe de
circulation du système fournis à la
livraison.
NOTE: Le fabricant décline toute res-
ponsabilité pour éventuels accidents
dus à la non mise à terre de la chau-
dière.
32
LEGENDE
TS Aquastat de sécurité
TA Thermostat d’ambiance
TC Aquastat chaudière
IG Interrupteur général
PI Pompe installation
B Brûleur
SB Lampe de mise en
sécurité du brûleur
Fig. 6
Modèle “AR”
Fig. 5
Modèle “ARB”
LEGENDE
TS Aquastat de sécurité
SB Lampe de mise en
sécurité du brûleur
EI Interrupteur Eté - Hiver
TA Thermostat d’ambiance
TB Aquastat de ballon
TC Aquastat chaudière
TL Aquastat limite
IG Interrupteur général
PB Pompe de charge ballon
PI Pompe installation
B Brûleur
R Relais
Fig. 6/a

Table of Contents

Other manuals for Sime AR Series

Related product manuals