EasyManua.ls Logo

Sime AR Series - Page 46

Sime AR Series
Print Icon
To Next Page IconTo Next Page
To Next Page IconTo Next Page
To Previous Page IconTo Previous Page
To Previous Page IconTo Previous Page
Loading...
1.1 INLEIDING
De gietijzeren ketels AR - ARB free-
standing” zij in overeenstemming met
de Europese Norm CEE 92/42.
Zij branden op lichte stookolie, beschik-
ken over een volmaakt uitgebalanceer-
de verbranding en hebben een zeer
hoog rendement dat een grote brand-
stofbesparing toestaat.
De ketels uit de serie "ARB" zijn com-
biketels en zorgen dus zowel voor ver-
warming als voor het produceren van
warm water.
De "AR" ketels daarentegen zorgen
alleen voor verwarming.
De AR” ketels worden in drie afzon-
derlijke verpakkingen afgeleverd: ver-
warmingslichaam, mantel met een
zakje dat de documentatie bevat en ins-
trumentenbord.
44
1 BESCHRIJVING VAN DE KETEL
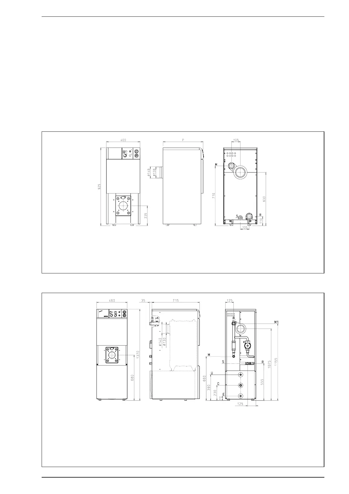
1.2 UITWENDIGE AFMETINGEN
1.2.1 Model “AR”
1.2.2 Model “ARB”
Fig. 1
AR3 AR4 AR5
P Diepte 375 475 575
M Toevoerleiding C.V. 1
1
/
2
”1
1
/
2
”1
1
/
2
R Retourleiding C.V. 1
1
/
2
”1
1
/
2
”1
1
/
2
S Lediging ketel 1/2” 1/2” 1/2”
ARB4 ARB5
M1 Toevoer zone-installatie 1
1
/
4
”1
1
/
4
M Toevoerleiding C.V 1” 1”
R Retourleiding C.V. 1” 1”
S Lediging ketel 1/2” 1/2”
E Aanvoer S.K.W. 3/4” 3/4”
C Terug S.W.W. 3/4” 3/4”
U Aftvoer S.W.W. 3/4” 3/4”
Fig. 1/a

Table of Contents

Other manuals for Sime AR Series

Related product manuals