EasyManua.ls Logo

Sime FORMAT DEWY.zip 25 BF - Page 103

Sime FORMAT DEWY.zip 25 BF
Print Icon
To Next Page IconTo Next Page
To Next Page IconTo Next Page
To Previous Page IconTo Previous Page
To Previous Page IconTo Previous Page
Loading...
3.1 ЭЛЕКТРОННАЯ ПЛАТА
Разработанная в соответствии с директивой о
Низком Напряжении ЕЭС 73/23,
электрическая плата требует напряжения в
230 В, функционирование электронных
компонентов гарантируется при температуре
от 0°С до +60°С.
Система непрерывной автоматической
модуляции позволяет котлоагрегату
регулировать мощность в соответствии с
потребностями установки или пользователя.
3.1.1 Сигналы о сбоях в работе
Сигнальные лампочки, которые предупреждают
об отклонениях и/или сбоях в функционировании
аппарата, изображены на Рис.16.
3.1.2 Устройства
Электронная плата снабжена следующими
механизмами (Рис.17):
Триммер “POT.RISC.” (6)
Регулирует максимальную величину
мощности накала. Для увеличения
мощности поверните триммер по часовой
стрелке, для уменьшения мощности
поверните триммер против часовой стрелки.
Триммер “POT.ACC.” (3)
Регулятор для изменения уровня давления
при включении (SТЕР) газовой заслонки.
Стандартная фабричная калибровка - шаг
включения в 95 Гц.
Для увеличения давления поверните триммер
по часовой стрелке, для уменьшения - против
часовой стрелки. Уровень давления при
включении устанавливается в течение
первых 7 сек. с момента разряда при
включении горелки.
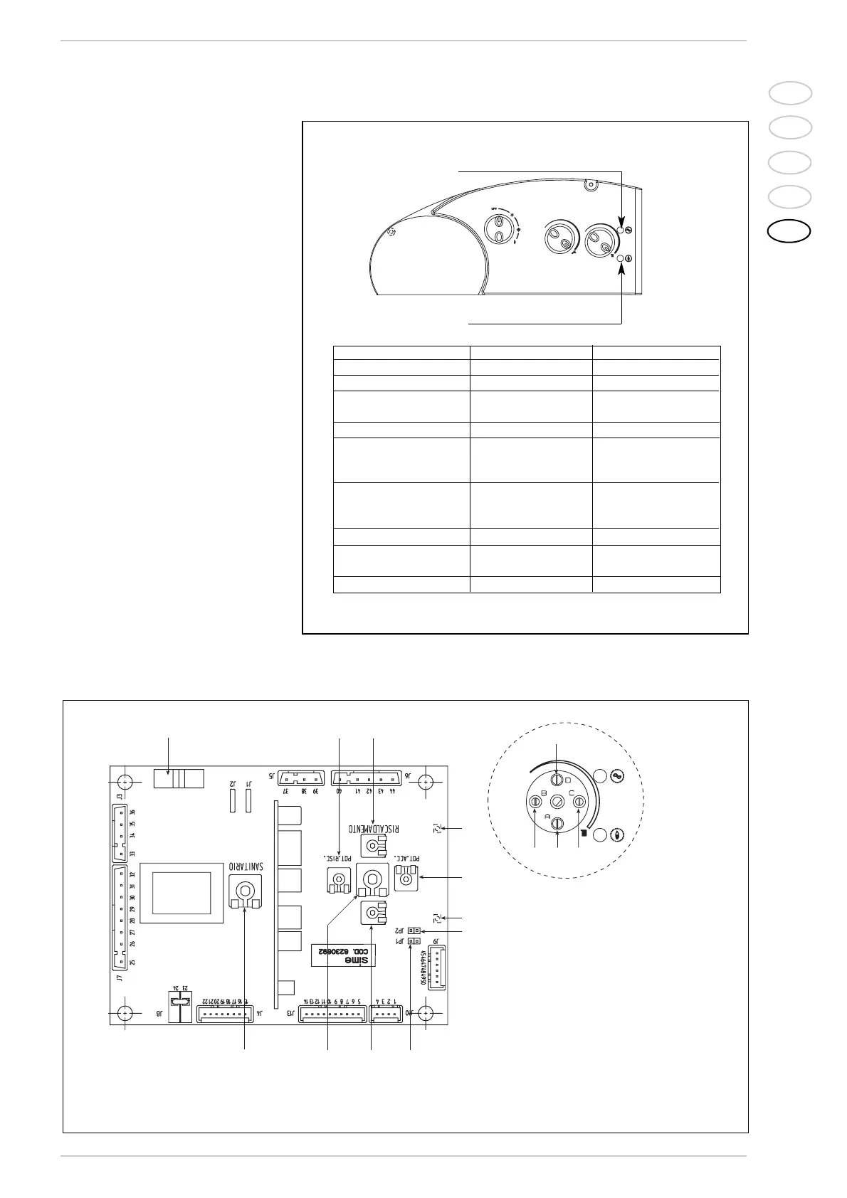
3 ХАРАКТЕРИСТИКИ
Рис. 16
1
2
3
5
4
6
7
8
9
1011
6 4
2
3
Рис. 17
ПЕРЕЧЕНЬ
1 Двухцветная лампочка 1
2 Триммер скорости вентилятора “MAX”
3 Триммер “Мощность нагрева
4 Триммер скорости вентилятора “MIN”
5 Двухцветная лампочка 2
6 Триммер “Мощность накала
7 Потенциометр санитарного контура
8 Плавкий предохранитель (1,6 AT)
9 Коннектор “JP2”
10 Коннектор отмена замедлений “JP1”
11 Потенциометр контура отопления
Двухцветная лампочка 1
Двухцветная лампочка 2
Обозначенная функция Двухцветная лампочка 1 Двухцветная лампочка 2
Stand-by Зеленая постоянная Выключена
Присутствие пламени Зеленая постоянная Оранжевая постоянная
Сбой в контуре
выявления пламени Зеленая постоянная Оранжевая мигающая
Блокировка включения Выключена Красная постоянная
Вмешательство
Tермостат безопасности (TS) Выключена Красная постоянная
Дымовой термостат (TF)
Вмешательство
регулят. водотока (FL) Оранжевая мигающая Выключена
огран. термостата (TL)
Сбой вентилятора Зеленая мигающая Выключена
Сбой в зонде
нагрева (SM) Оранжевая постоянная Выключена
Котел отключен Выключена Выключена
ПРИМЕЧАНИЕ: Для доступа к триммеру регулировки (2-3-4-6) выньте ручку потенциометра нагрева.
101
IT
ES
PT
GB
RUS

Related product manuals