EasyManua.ls Logo

Sirona C3+ - Mounting Plates for Equipment with Swiveling Cuspidor

Sirona C3+
38 pages
Print Icon
To Next Page IconTo Next Page
To Next Page IconTo Next Page
To Previous Page IconTo Previous Page
To Previous Page IconTo Previous Page
Loading...
1 Preparations Sirona Dental Systems GmbH
Installation Requirements C3
+
, C4
+
, C4
+
Cart
60 27 945 D3382
14 D3382.021.02.12.02
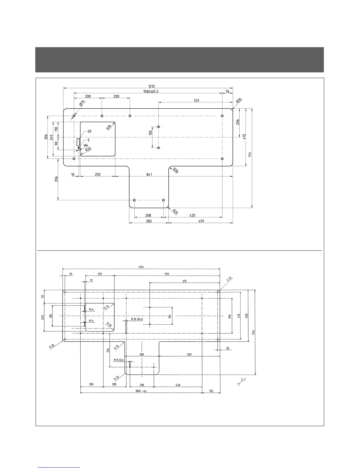
1.7 Mounting plates for equipment with swiveling
cuspidor
Mounting plate
Demonstration chair plate
REF 58 71 913
REF 58 66 301
For especially uneven floor conditions, a steel mounting
plate is available to compensate for the irregularities of the
floor (REF 58 71 913).
For floors which do not permit permanent connection of the unit (e.g. demo
operation at a fair), installation on a steel demonstration chair plate is
possible (REF 58 66 301).

Related product manuals