EasyManua.ls Logo

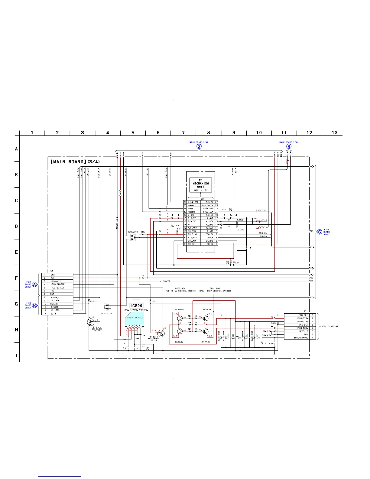
Sony CDX-M50IP - Schematic Diagrams (Main Section 3;4); 5-6. Schematic Diagram - Main Section (3;4)

Sony CDX-M50IP
48 pages
Print Icon
To Next Page IconTo Next Page
To Next Page IconTo Next Page
To Previous Page IconTo Previous Page
To Previous Page IconTo Previous Page
Loading...
2626
CDX-M50IP/MR50IP
CDX-M50IP/MR50IP
IC B/D
C403
C401
R401
R402
D400
D800
Q804
Q803
Q801
Q802
JC34
JC35
R825
R803
R802
C817
FB408
FB405
FB406
C824
C402
C410
C412
FB407
FB404
C816C815
R826
D806
FB402
C419
C418
C417
C405
C415
R351
D804
D803
C806
C805
D802
C803
C804
D801
C802
C825
CN800
CN350
FB401
FB403
R806
R814R817
R813R816
R812R815
R808
R807
CN801
R809
R811
L801
Q824
Q806
IC800
R810
5-6. SCHEMATIC DIAGRAM — MAIN SECTION (3/4) —
Refer to page 33 for IC Block Diagrams.
(Page 24)
(Page 25)
(Page 28)
(Page 28)
(Page 27)

Other manuals for Sony CDX-M50IP

Related product manuals