EasyManua.ls Logo

Sony HCD-HDX285 - Main Board Schematic Part 4

Sony HCD-HDX285
107 pages
Print Icon
To Next Page IconTo Next Page
To Next Page IconTo Next Page
To Previous Page IconTo Previous Page
To Previous Page IconTo Previous Page
Loading...
HCD-HDX285/HDX287WC/HDX585/HDX587WC/HDX589W/HDX685/HDX686W
HCD-HDX285/HDX287WC/HDX585/HDX587WC/HDX589W/HDX685/HDX686W
3939
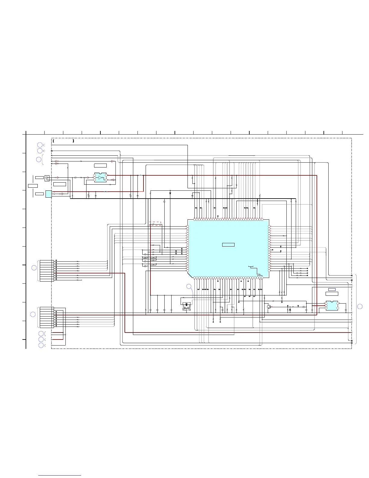
6-11. SCHEMATIC DIAGRAM - MAIN Board (4/10) -
• See page 59 for Waveforms. • See page 62 for IC Block Diagrams. • See page 70 for IC Pin Function Description.
BOARD
MAIN
(5/10)
16
BOARD
SERIPARA
CN001
G
BOARD
I/O
CN4009
F
4
(10/10)
BOARD
13
MAIN
(6/10)
BOARD
14
MAIN
(6/10)
BOARD
12
MAIN
10
BOARD
(3/10)
MAIN
15
BOARD
(9/10)
MAIN
2
BOARD
(1/10)
MAIN
IC B/D
3.3
0.2
1.7
3.3
1.7
3.3
3.3
3.3
3.3
3.3
0
0
0
0
0
2.3
3.3
2.2
3.3
3.3
3.3
3.3
3.3
0
2.9
3.3
0
0
0
3.1
3.3
0
2.4
3.1
3.3
1.7
3.3 [0]
3.3
3.3
3.3
3.3
0
3.3
3.3
3.3
3.3
3.3
0
0
0
0
3.3
0
0.1
0.1
3.5
3.3
3.3
0
1.8
1.5
3.3
3.3
0
0
3.3
3.3
3.3
3.3
0
2.5
3.3
0.1
3.3
3.3
3.3
0
0
3.2
3.3
3.3 [0]
0
3.3
3.3
3.3
3.3
3.3
3.3
0
03.3
4.1
0.01
C509
R510
100
100
R511
100
R512
100
R513
100
R514
100
R515
R516
100
R531
R548
10k
R550
10k
R585
10k
10kR572
R549
10k
C510
0.01
R536
JL532
JL529
JL518
CL505
CL508
CL507
CL503
CL506
CL509
CL511
CL528
CL504
CL510
CL529
R508
100
S-AIR
0.1
C519
0R564
5MHz
X501
0.1
C518
47k
R597
JL531
47k
R582
2SC3052EF-T1-LEF
Q501
JL530
100k
R596
47k
R598
0.22
C523
10k
R599
0.01
C524
0.1
C525
10k
R577
0.1
C517
1k
R533
1k
R534
1kR543
10k
R545
0.01
C512
0.1
C513
0.1
C515
0.1
C511
0.1
C514
10k
R541
0
R594
10k
R591
JL516
R539
10k
R579
4.7k
R581
4.7k
10k
R563
1M
R537
JL517
JL519
R576
100
1kR544
1kR540
CL526
CL527
JL501
L502
10uH
R506
100
16V
C505
100
R502
75
R501
470
J501
16V
C507
100
L501
10uH
5
43
2
1
TC7SHU04FU(T5RSOJF)
IC501
R504
47k
R505
100
VCC
OUT
GND
TORX147L
IC502
1
2
3
C508
0.1
C504
0.1
C501
0.1
10k
R557
4.7k
R560
R573
0
COAX-IN
M_ST
OPT-IN
10k
R542
MA2J1110GLS0
D502
DMP_DET
R595
0
R592
10k
0.022
C527
JL509
JL510
JL511
JL508
JL507
A12V
CL519
CL524
R526
100
M-GND
R527
100
CL522
CL525
CL521
R525
100
CL523
CL520
R528
100
R524
100
10kR568
1
2
3
4
5
6
7
8
9
9P
CN505
M-GND
M+12V
D-GND
D3.3V
IORST
IOCE
IOCLK
IODO
IODI
JL506
JL520
JL525
JL527
JL524
JL523
JL522
JL521
JL515
JL513
JL512
JL505
JL504
JL503
JL502
JL526
JL528
R632 10k
10kR633
10kR634
10kR635
R590
47k
1
2
3
4
5
6
7
8
9
9P
CN502
TV_SEL
V_SEL1
V_SEL0
A12V
ST_DI/MIC_DATA
ST_CE
ST_DO
ST_CLK/MIC_CLK
TUNED
5
43
2
1
S-80935CNMC-G85T2G
IC506
OUT
VDD
GND NC
Cd
MA2J1110GLS0
D501
47p
C554
R636 10k
1 2 3 4 5 6 7 8 9 1011 12131415161718192021222324252627282930
31
32
33
34
35
36
37
38
39
40
41
42
43
44
45
46
47
48
49
50
515253545556575859606162636465666768697071727374757677787980
81
82
83
84
85
86
87
88
89
90
91
92
93
94
95
96
97
98
99
100
IC503
R5F3640DDFAR
DAMP_SCDT
DAMP_SHIFT
FL_CS
SIRCS_IN
FL_DATA/LED_DATA
CEC_RX_IN
FL_CLK/LED_CLK
BYTE
CNVss
DIR_ERROR
DIR_RST
RESET
Xout
Vss
Xin
Vcc
DIR_XSTATE
DIR_ZERO
DIR_CSFLAG
AC_CUT
DSP_SF_CE
DSP_MISO
DSP_SPICLK
DSP_MOSI
DSP_SPIDS
CEC_TX_OUT
DSP_RESET
LED_PWM
E2P_CLK/S-AIR_CLK
E2P_SDA/S-AIR_SDA
TXD1
RXD1
S-AIR_GPIO2/CLK1
S-AIR_DET/RST1
DMP_TX_OUT
DMP_RX_IN
S-AIR_RST
S-AIR_ADC_SEL
P_CONT1
P_CONT2
P_CONT3
DC_CONT
MIC_GAIN
CDM_OPEN_SW
DVD_RST
WRITE CE
DVD_SDI
DVD_SDO
DVD_SCO
XIFBUSY
DVD_
DVD_XIFCS
LED LAT
KMODE
DRIVER_RST(EN)
OVERFLOW1
OVERFLOW2
DAMP_INIT
SOFT_MUTE
DAMP_LAT1
DAMP_LAT2
DAMP_LAT3
Vcc
LINK_SW
Vss
JACK1/JACK2/DMP_DET
DC_DET
SD/PVDD_DET
A.CAL_OUT
SACD_SEL
DIR_HCE
HP_MUTE
HDMI_PCONT
KEY_INT
RDS_DATA
RDS_CLK
ST_CE
ST_DI
ST_DO
ST_CLK
TUNED
V_SEL0
V_SEL1
V_SEL2
IO_CE
IO_RESET
IO_DI
IO_DO
IO_CLK
ASEL5
MONO/ST_DET
A.CAL MIC LEVEL
DESTINATION
MODEL
KEY2
KEY1
Vss
KEY0
Vref
Vcc
DIR_
HDOUT
CL387
CL389
CL390
CL392
CL391
CL396
R535
R532
M-GND
A12V
SIRCS
TUNED
ST_DI
ST_CE
ST_DO
ST_CLK
DIR-XSTATE
M_ST
IODI
DMP_TXD
XSYSRST
IFSDI
IFSCK
XIFBSY
XIFCS
OVF1
LAT1
LAT2
LED_LAT
IORST
IOCE
IOCLK
IODO
IODI
CEC_TX_OUT
S-AIR_RST
DC_CONT
MIC_GAIN
OCSW1SIG
TUNED
HPMUTE
SHIFT
SCDT
CEC_RX_IN
FL_CS
S-AIR_SDA
FL_DATA
OVF2
HDMI_PCONT
SOFT_MUTE
EN
A.CAL_OUT
NS_INIT
JACK1+2
M_ST
ST_DO
ST_CLK
LAT3
KEY0
A.CAL
KEY2
KEY1
IOCE
IORST
MONO/ST_DET
ST_CE
DC-DET
SD_PVDD_DET
S-AIR_DET
S-AIR_ADC_SEL
GPIO2
DMP_RXD
IFSDO
P_CONT1
P_CONT3
S-AIR_SCL
IODO
IOCLK
ST_DI
FL_CLK
IC506
RESET SIGNAL GENERATOR
SYSTEM CONTROLLER
IC503
OPTICAL RECEIVER
IC502
WAVE SHAPER
IC501
31
32
34
35
36
37
38
39
33
40
41
MAIN BOARD (4/10)
VCCNC
GND
RESET SWITCH
10k (E3, EA)
R531
47k (US, CND)
(EXCEPT HDX285)
R532
47k (E3, EA)
22k (US, CND)
R535
1k (HDX285)
22k (HDX585)
33k (HDX287WC/HDX587WC)
47k (HDX589W/HDX685/HDX686W)
15k (HDX685)
R536
10k (HDX686W)
47k (HDX287WC/HDX585/HDX587WC/HDX589W)
DIGITAL IN
TV
COAXIAL
OPTICAL
J
4
B
166911
D
15
H
L
10
K
1735 12
C
F
181
E
8
G
14
A
2 13
I
7
R614 100
R607 100
R606
100
R605 100
R604
100
R603
100
CL554
CL553
CL551
CL550
CL549 CL548
(Page 45)
(Page 41)
(Page 41)
(Page 53)
(Page 48)
(Page 36)
(Page
38)
(Page 44)
(Page
40)

Table of Contents