EasyManua.ls Logo

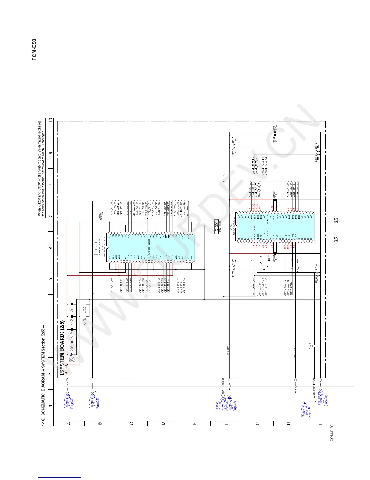
Sony PCM-D50 - Schematic Diagram - System Section (2;5)

Sony PCM-D50
78 pages
Print Icon
To Next Page IconTo Next Page
To Next Page IconTo Next Page
To Previous Page IconTo Previous Page
To Previous Page IconTo Previous Page
Loading...
ßïßîßíßéßèßçÞïÞîÞíÞéÞèÞçÝïÝ îÝíÝéÝèÝçÜïÜîÜíÜéÜèÜçÛïÛîÛí
ÛéÛèÛçÚïÚîÚíÚéÚèÚçÙïÙîÙíÙéÙèÙçØïØîØíØéØèØçÖïÖîÖíÖéÖèÖç
ïîíìëêéèçïðïïï îï íïìïëï êïéï èïçî ðîïî îîíî ì
îëîêîéîèîçíðíïíîíííìíëíêíéíèíçìðìïìîìíìììëìêìéìè
WWW.OURDEV.CN

Other manuals for Sony PCM-D50

Related product manuals