EasyManua.ls Logo

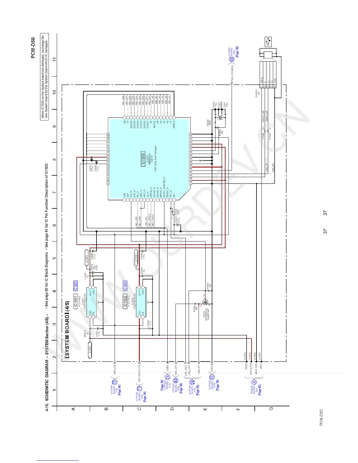
Sony PCM-D50 - Schematic Diagram - System Section (4;5)

Sony PCM-D50
78 pages
Print Icon
To Next Page IconTo Next Page
To Next Page IconTo Next Page
To Previous Page IconTo Previous Page
To Previous Page IconTo Previous Page
Loading...
±0.5%
5600R1502
12
3 4
H1H2F4G3H3E4G4H4F5E5H5G5H6G6H7G7
A8A7C6B6A6C5B5A5C4D4A4B4A3C3A2B3
12
34
AFED33G
AFED33V
DM
DP
VBUS
AFEA15V
AFEA15G
REFRIN
AFEA33G
XIN
XOUT
AFEA33V
AFED15V
AFED15G
VIF
TEST
SD5
SD4
SD3
SD2
SD1
SD0
VIF
DGND
VDD
D15
D14
D13
D12
D11
D10
D9
AB0_D15
AB0_D14
AB0_D13
AB0_D12
AB0_D11
AB0_D10
AB0_D09
WWW.OURDEV.CN

Other manuals for Sony PCM-D50

Related product manuals