EasyManua.ls Logo

Sony TRINITRON GDM-1601 - Page 40

Sony TRINITRON GDM-1601
67 pages
Print Icon
To Next Page IconTo Next Page
To Next Page IconTo Next Page
To Previous Page IconTo Previous Page
To Previous Page IconTo Previous Page
Loading...
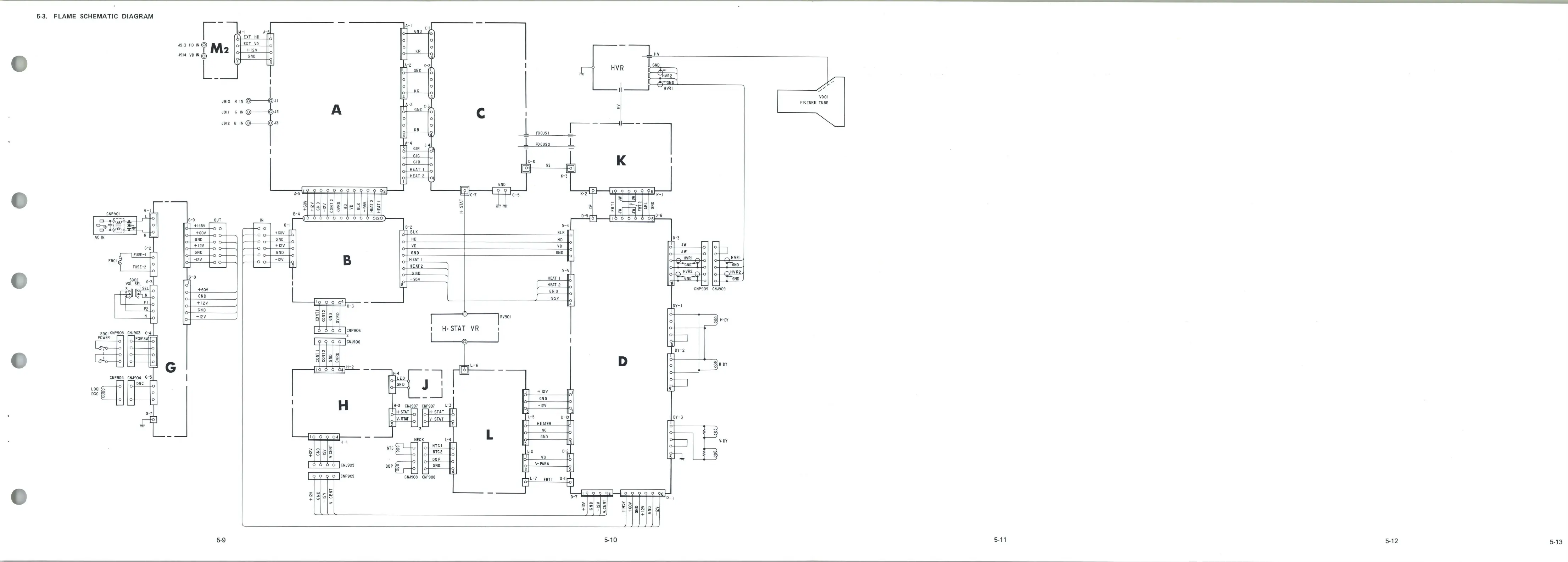
SC
HEMATIC
DIAGRAM
5-3_
FLAME
5901
CHP903
CNJ903
G-4
~
.•.
L
SO
I
DDC
q]
CNP904
CHJ9:~c
G-5
--
I
"_
I
I
~
En
HO
EXT
VO
913
HO
I
N@
M2
+ 1
2V
I
GND
9
14
VO
IN
©
L_
J910
R IN
__
CQr
-
""""'
'f
J I
J911
e
IN
_
<gr-
- ''f'j)J'
c
J91Z
8 IN
__
<8t--'Y
J3
---i¥
U
c
-,
~
I
1
1
c-,
Ii'
FOCUS
I
fOCUSZ
-I
HV
GHD
~
HVR
~--j
~VR2
--.J
II
-
HVRI
~
r-~--I
K
I
eNO
T
F
::;
x
-
,.
~
~
-{
~Q::..B
:::.d:£
tjd:::tt1=:E!I2~c:/
~Jt
~I'-~'8L~K~~====
=~=
;t;~~;~~~=======~~~~
~;~E~
+14"
I - 0
r-
,
+60V
I I ,
HD
+6
0V
''''"
1"""'1
r-~<>-t-e::::
'
~D
11
-
VD
GHD
,
~,---
r--
I
_
+I2V
I =
eND
+I2V
'~,---
't:
eND
B
1-
HEA"
GNO
'",--,
I -
I2V
H
EAT2
I2V
'<>---r-
~
'f I : --"-'"'
----!
I
~v
I
D-'
J,
r
r
-
8HVR
,
J,
i<'
I
~-
HVRI
LDN.!:,l
-LEND
G
t'
::~v
lL--{Jlf=
~PP4
B-3
_____
J_
'
+ 1
2V
eND
I2V
r-----(
Og>-
--
'I
RV90
1
!
J
5-9
-.J
~NP906
~L::;:::;:~.Jl
,eNJ906
-~
\ii:
~
(:)
~
0<::>
:z
>
U u
C>
<::>
r--{iI
!:
£:[J~4
H-Z
H
" - I
STAT
VR
l
o
,.L!';'
r--i
!-L
flo-l-LED
J I
,.J.GND
r
~
I
--
L
-'
~
-3
CNJ907
CNP907
~6!H
'
STAT
to
101
M
' Sf
AT
I
1V
,
51",+
!,..IV
'
51"
-I<
II¥>+,-t<'
I - , U
.'
NECK
LO
r!,
"
TC~
r:-
:~~~
.
OQ
P
eND
OOP
CNJ908
CNP908
I
J
---,
m
+
12V
OND
-IZV
3
L-5
r+l
HEATER
L
He
11-
GHO
~
'
-.l'Jl
1,1
v-
PARA
,
L
-,
FBT
I
J
-----
HVR2-A
~
I.D~
LeND
CNP309
CNJ909
DY- I
I
I
~
~HDY
lOp
Oy-z
D
0
WH-OY
1"0
~
::;
ItO,
D-lO
rh
DV
- 3
~
V
'
DY
I
:P
0
n"
0
.
~
D-~'
17
-11
~
~-
I
'"
~
I
~
z
~
..
~
,
~
>
5-10
/
/
'----V9
01
PICTURE
TUBE
5·
11
5-12
5-
13

Related product manuals