EasyManua.ls Logo

SPX HPD Series - Models 2200 through 3200

SPX HPD Series
48 pages
Print Icon
To Next Page IconTo Next Page
To Next Page IconTo Next Page
To Previous Page IconTo Previous Page
To Previous Page IconTo Previous Page
Loading...
42
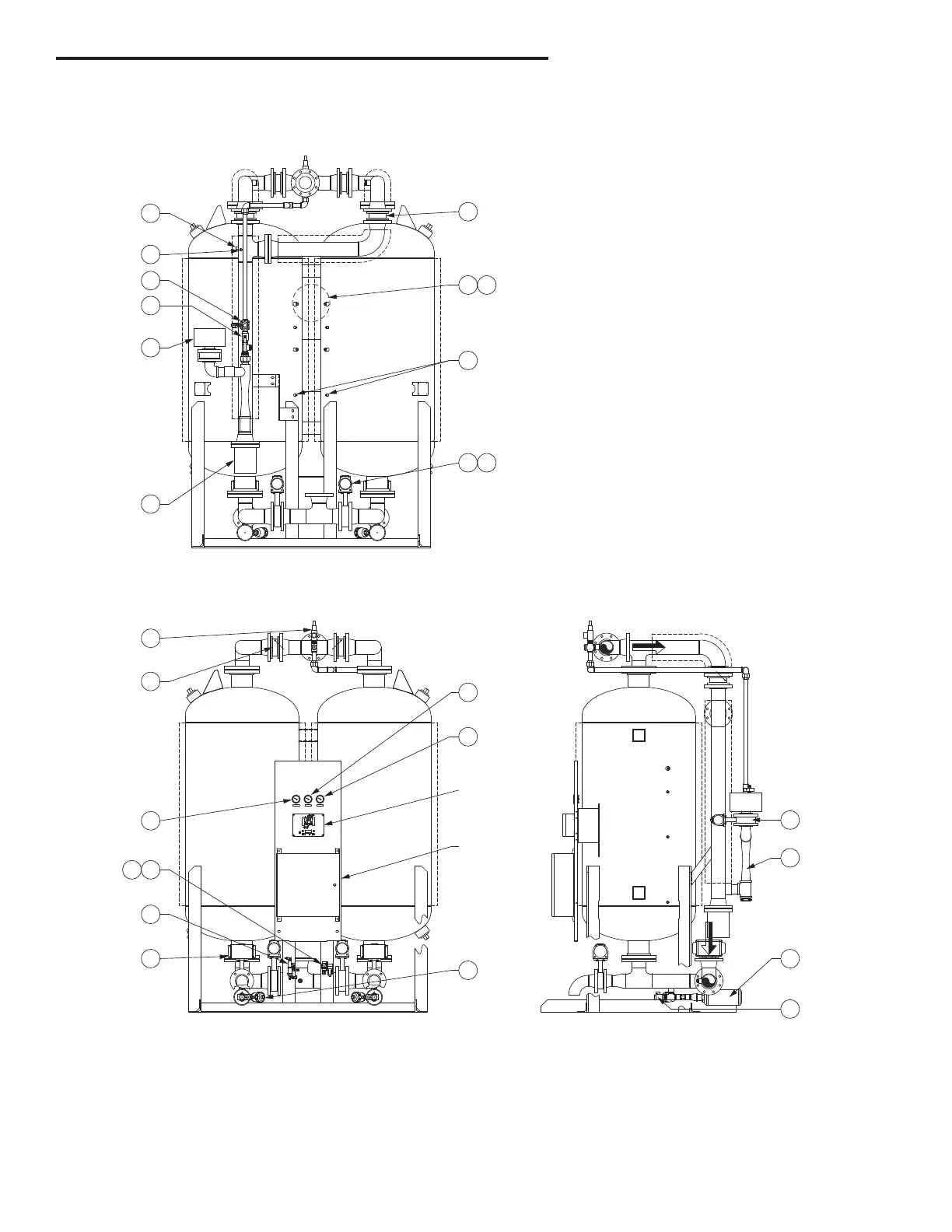
Replacement Parts – Models 2200 through 3200
Phone: 724-745-1555
FAX: 724-745-6040
Email: hankison.americas.am@spx.com
Web: www.spx.com/hankison
HIGH TENSION
ENCLOSURE
CONTROL
ENCLOSURE
8
7
25
22
46
6
10
4
11
15
54
2
14
5
27
11
23
1 1A
3
9
42
45
44
17A
43
FRONT VIEW
SIDE VIEW
(RIGHT CHAMBER REMOVED FOR CLARITY)
REAR VIEW
AIR
OUT
LEFT CHAMBER
RIGHT CHAMBER
AIR
IN

Related product manuals