EasyManua.ls Logo

Strobel 310D-R - Page 40

Strobel 310D-R
44 pages
Print Icon
To Next Page IconTo Next Page
To Next Page IconTo Next Page
To Previous Page IconTo Previous Page
To Previous Page IconTo Previous Page
Loading...
258.10.26
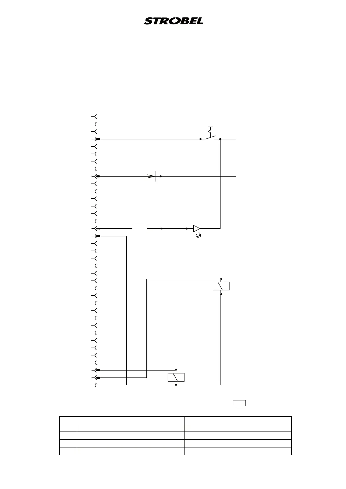
Elekrischer Schaltplan - Punktriegel
Kl. 310D-R ab Ausf. 16, 3100D-R ab Ausf. 3
Electrical wiring diagram - Spot tack
Cl. 310D-R as of version 16, 3100D-R as of version 3
1
2
3
4
5
6
7
8
9
10
11
12
13
14
15
16
17
18
19
20
21
22
23
24
25
26
27
28
29
30
31
32
33
34
35
36
37
0V
+24V
+24V
+24V
0V
R
ST2
Sperrdiode
S1 (R)
1V2 (R)
1V1 (LÜ)
vom hantrieb
from sewing drive
ws
wh
gn
gn
br
bn
ws
wh
ws
wh
ws
wh
br
bn
br
bn
br
bn
br
bn
br
bn
bl
bu
bl
bu
gn
gn
1V1 Magnetventil "Lüftung" (LÜ) solenoid valve "lifting" (LÜ)
1V2 Magnetventil "Punktriegel" (R) solenoid valve "spot tack" (R)
R Widerstand resistor
S1 Schalter mit LED "R" switch with LED "R"
ST2 Stecker Steuerkasten (Nähantrieb) plug control box (sewing drive)
195.0061

Table of Contents

Other manuals for Strobel 310D-R

Related product manuals