EasyManua.ls Logo

Sub-Zero 700TCI-3 - Functions of the Electronic Control System; Supply Power to the Lighting System

Sub-Zero 700TCI-3
136 pages
Print Icon
To Next Page IconTo Next Page
To Next Page IconTo Next Page
To Previous Page IconTo Previous Page
To Previous Page IconTo Previous Page
Loading...
Electronic Control System
Integrated
Integrated
(700-
(700-
3
3
T
T
ALL)
ALL)
Series
Series
3-10
#3758412 - Revision B - December, 2006
FUNCTIONS OF THE ELECTRONIC CONTROL SYSTEM
The following pages explain monitoring, regulating and controlling functions of the electronic control system. In most
cases signal traces of a model 700TCI-3 wiring schematic are used to show current flow for functions being
explained.
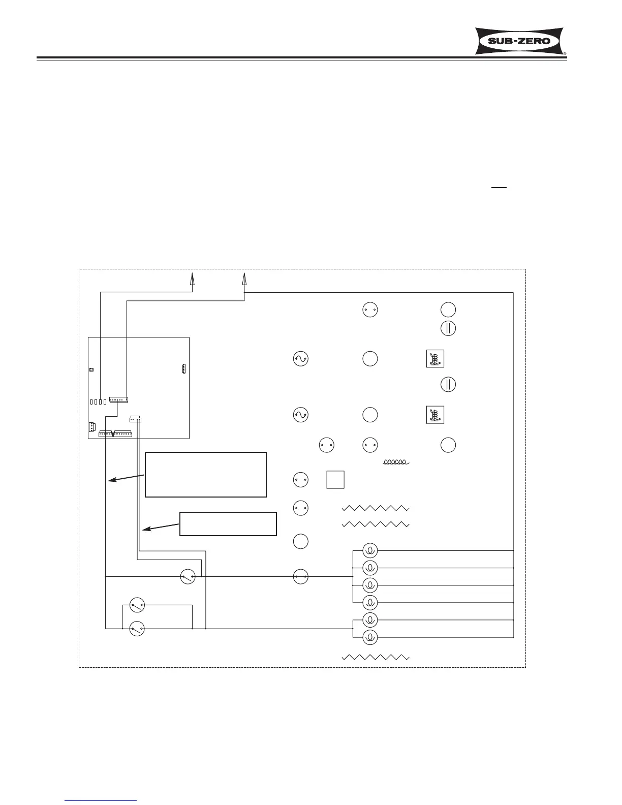
Supply Power to the Lighting System
115 Volts AC are supplied to the lighting system through the control board when the unit is switched ON
by pressing
the UNIT ON/OFF key. With the doors open, the light switches allows power to the lights (See Figure 3-18).
NOTE: 115 Volt AC signal to the lights is monitored by the microprocessor to control the door ajar alarm feature.
NOTE: If in Sabbath Mode, th lighting system is disabled. Sabbath Mode will be covered later.
Figure 3-18. 700TC/I-3 Signal Trace Schematic of Lighting System
J6
J5
J3
E2 E7 E10 E6
J2
J1
J7
J4
HIGH VOLTAGE
FREEZER
LIGHT
SWITCHES
REFRIGERATOR
LIGHT SWITCH
LIGHT
TERMINATOR
REFRIGERATOR
LIGHTS
FREEZER
LIGHTS
NEUT
115 VOLTS
60 CYCLES
L1
WHITE
BLACK
ORANGE
ORANGE
WHITE
ORANGE
ORANGE
ORANGE
ORANGE
M
M
M
M
M
115 Volts are supplied
through J7 to lighting system
unless unit is switched OFF
or is in Sabbath Mode
NOTE:
Door Ajar Sense Lines

Table of Contents

Related product manuals