EasyManua.ls Logo

Sub-Zero 700TCI-3 - Heat Exchanger Cover

Sub-Zero 700TCI-3
136 pages
Print Icon
To Next Page IconTo Next Page
To Next Page IconTo Next Page
To Previous Page IconTo Previous Page
To Previous Page IconTo Previous Page
Loading...
Component Access/Removal
Integrated
Integrated
(700-
(700-
3
3
T
T
ALL)
ALL)
Series
Series
7-12
#3758412 - Revision B - December, 2006
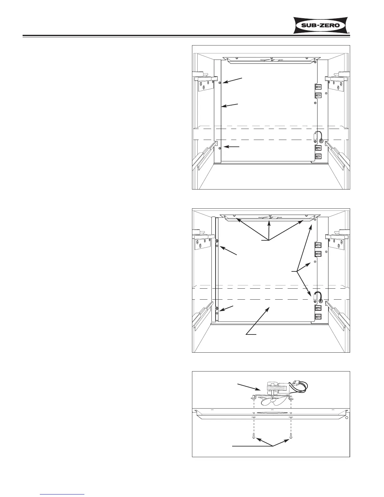
Heat Exchanger Cover Removal (All Models)
The heat exchanger cover is held in the back left corner
of the lower compartment with screws that go through
the cover and into stand-offs. (See Figure 7-24)
To access and remove the heat exchanger cover, the
drawers and the left side drawer slides will need to be
removed first. Then, extract the mounting screws and
pull the cover from the unit.
Lower Evaporator Cover Assembly Removal
(Models 700TR-3 & 736TR-3)
NOTE: In these models, the evaporator fan assembly
is attached to the lower evaporator cover assembly.
The lower evaporator cover assembly is held in place
with screws. The left side mounting screws will be visi-
ble after the heat-exchanger cover is removed. Screws
on the right side secure the assembly to the switch
enclosure, and screws at top secure the assembly to
the ceiling of the lower compartment. (See Figure 7-25)
To access and remove lower evaporator cover assem-
bly, first remove drawers, left drawer slides, and heat
exchanger cover, then (See Figure 7-25):
1. Extract left side mounting screws.
2. Extract screws from top and right side of assembly.
NOTE: Bottom screw on right side also secures the
compartment thermistor.
3. Pull right top front of assembly down slightly and
disconnect evaporator fan electrical leads, then pull
assembly out through upper drawer opening.
Lower Evaporator Fan Assembly Removal
(Models 700TR-3 & 736TR-3)
The lower evaporator fan assembly is held in place by
bolts passing through access holes in the evaporator
fan shroud, then through the top flange of the evapora-
tor cover and into well-nuts in the fan bracket.
To access and remove the lower evaporator fan assem-
bly, first remove drawers, left side drawer slides, heat
exchanger cover and evaporator cover assembly.
Then, extract the bolts from the well-nuts (See Figure 7-
26).
The evaporator fan blade is pressed onto the shaft of
the fan motor and can be removed by simply pulling it
away from the motor.
Heat Exchanger Cover
Figure 7-24. Heat Exchanger Cover Removal
Screw
Screw
Figure 7-25. Evaporator Cover Removal, 700TR-3
Evaporator Cover Assembly
Screw
Screws
Screws
Screw
Figure 7-26. Evaporator Fan Removal, 700TR-3
Evap Fan Assy
Bolts through
Access Holes

Table of Contents

Related product manuals