EasyManua.ls Logo

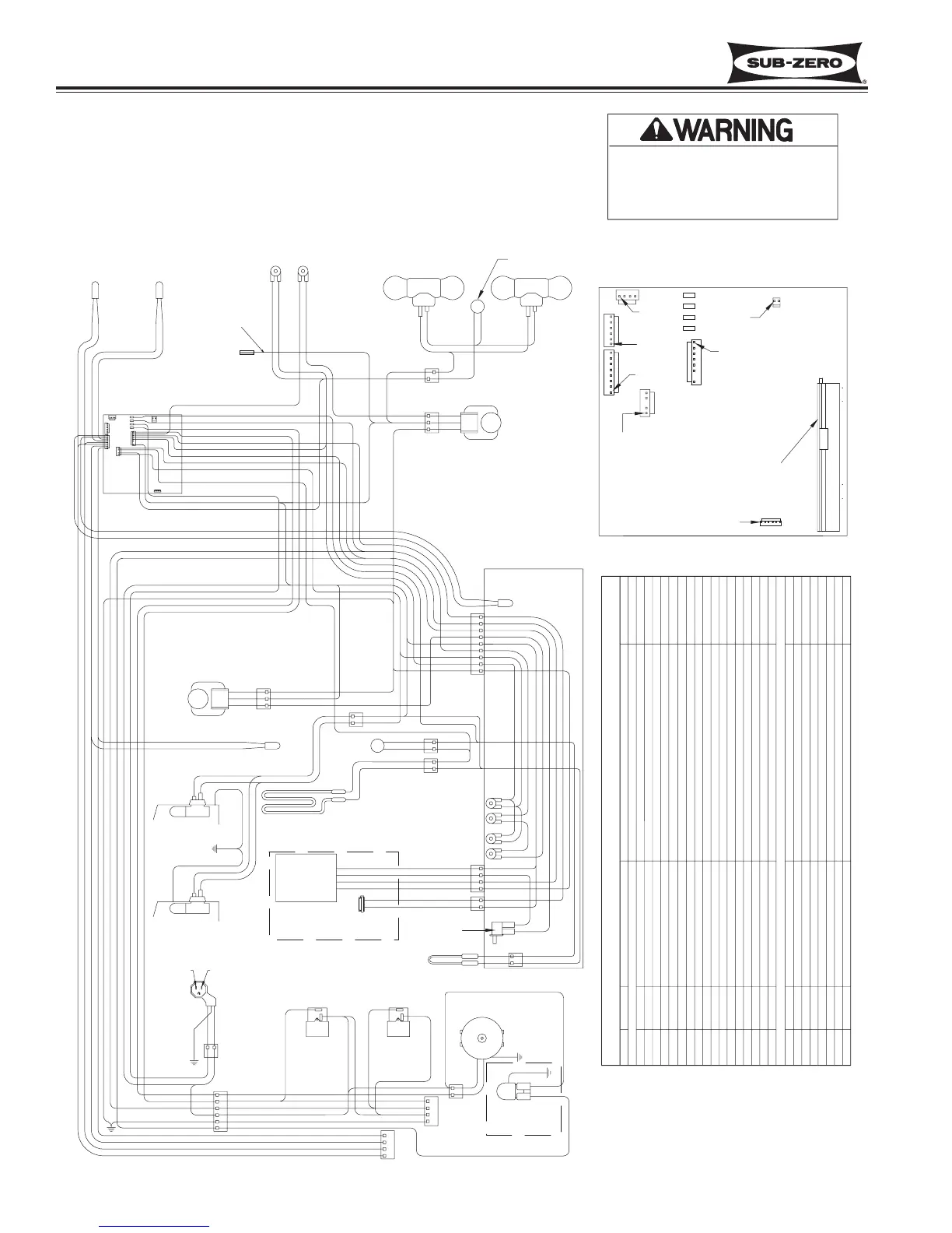
Sub-Zero 700TCI-3 - WIRING DIAGRAM MODEL: 736 TC;I-3

Sub-Zero 700TCI-3
136 pages
Print Icon
To Next Page IconTo Next Page
To Next Page IconTo Next Page
To Previous Page IconTo Previous Page
To Previous Page IconTo Previous Page
Loading...
Wiring Diagrams/Schematics
Integrated
Integrated
(700-
(700-
3
3
T
T
ALL)
ALL)
Series
Series
10-8
#3758412 - Revision B - December, 2006
BLUE/BLACK
BLUE/YELLOW
ORANGE/YEL
BLUE/WHITE
TAN
BLUE/BLACK
BLUE/WHITE
BLUE/RED
ORANGE/RED
WHITE/BLUE
GRAY/WHITE
SENSES FRZ CABINET TEMP (DRAWERS)
SENSES REF EVAP TEMP
ORANGE/BLACK
WHITE
ORANGE
SENSES WATER VALVE ACTIVATION
BLUE
PINK
WHITE/RED
SENSES FRZ CABINET TEMP (DRAWERS)
SENSES REF CABINET TEMP
SENSES REF CABINET TEMP
SENSES REF EVAP TEMP
SENSES FRZ EVAP TEMP (DRAWERS)
SENSES IF EITHER DRAWER OPEN
POWERS LIGHTS
PURPLE
YELLOW
SENSES FRZ EVAP TEMP (DRAWERS)
RED
POWERS ICE MAKER
POWERS FILL TUBE HEATER AND ACCESSORIES
REF EVAP
FRZ COMPARTMENT
REF COMPARTMENT
REF EVAP
POWER IN
J7-7
J4-4
J1-2
POWERS CONDENSER FAN
POWERS REF COMPRESSOR (DOOR)
POWERS REF FAN SW
DEF SENSOR
ICE MAKER ACC (FILL TUBE)
ICE MAKER
FRZ EVAP
NOT USED
CONDENSER FAN
FRZ COMPRESSOR
J7-1
RCOMP
J7-3
J4-1
J7-6
J7-8
LITES
J1-4
J4-5
J4-3
J1-3
J1-1
FRZ EVAP
C FAN
E6
E7
E10
FCOMP
L1
J7-5
J7-2
J7-4
E FAN
J1-7
IACC
ICE
F DR
EVAP REF
DEFROST HEATER
ICE MAKER VALVE SENSOR
POWERS DEFROST CIRCUIT
LOW VOLTAGE THERMISTOR CIRCUITS
FRZ COMPARTMENT
REF COMPARTMENT
NOT USED(NO PIN)
NOT USED(NO PIN)
FAN SW
REF COMPRESSOR
LIGHTS
NEUTRALNEU
J4-2
J1-8
J1-6
J1-5
R DR
EVAP FRZ
EVAP FRZ
EVAP REF
REF
REF
FRZ
FRZ
SENSES WHEN DEF HEATER SHUTS OFF
DOOR LIGHTS SENSE
DRAWER LIGHTS SENSE
120 VOLT CIRCUITS
DEF HTRE2
SENSES IF DOOR OPEN
POWERS FRZ COMPRESSOR (DRAWERS)
POWER INTO BOARD
NEUTRAL INTO BOARD
GRAY
BLACK
DESCRIPTION
CIRCUIT
CONTROL BOARD SUMMARY
FUNCTION COLOR
-This wiring information is provided for use by qualified
service personnel only.
-Disconnect appliance from electrical supply before
beginning service.
-Be sure all grounding devices are connected when
service is complete.
-Failure to observe the above warnings may result in
severe electrical shock.
WHITE
ORANGE
WHITE
ORANGE
GREEN
GREEN
1 WHITE W/ BLUE STRIPE
6 PURPLE
9 TAN
7 PINK
5 RED
8 YELLOW
2 WHITE
4 ORANGE
3 GRN/YLW
SENSOR
(FRZ CAB.)
BLACK
BLACK
L2L1
PURPLE
GRAY
WHITE
WHITE
J1
E6
E10
E7
E2
GREEN/YELLOW
WHITE
LIGHT
LIGHT
FAN
FAN
WHITE
WHITE/BLUE5
2
WHITE W/ BLUE STRIPE
TAN
PINK
RED
WHITE
PURPLE
YELLOW
ORANGE
GRAY W/ WHITE
GREEN/YELLOW
WHITE
RED
3
2
1
DEFROST
TERMINATOR
ORANGE W/ YELLOW STRIPE 4
BLUE W/ YELLOW STRIPE 3
BLUE W/ RED STRIPE 1
ORANGE W/ RED STRIPE 2
6 WHITE W/ RED STRIPE
2 WHITE
4 PURPLE
3 GREEN/YELLOW
1 GRAY
WHITE
BLACK
12
GREEN/YELLOW
PLAIN
RIBBED
WHITE
WHITE W/ RED STRIPE 1
WHITE 2
GRAY 4
WHITE 2
PURPLE 1
GREEN/YELLOW 3
BLACK
BLACK
GREEN
GREEN
TAN
WHITE
5 TAN
1 ORANGE
2 WHITE
GRAY W/ WHITE
WHITE 2
GRAY/WHITE 1
SENSOR
(FRZ EVAP)
GRAY/WHITE 2
BLUE 1
WHITE
GRAY/WHITE
GRAY/WHITE
BLUE
GREEN/YELLOW
TAN6
1
PINK
WHITE4
3
WHITE
BLUE
BLUE 1
WHITE 2
PURPLE
WHITE W/ RED STRIPE
ORANGE W/ RED STRIPE
BLUE W/ RED STRIPE
BLUE W/ YELLOW STRIPE
ORANGE W/ YELLOW STRIPE
GREEN/YELLOW
WHITE
BLACK
GRAY
TAN
LOWER DRAWER
LIGHT
J1
E6
E7
E2
BLACK
GREEN/YELLOW
WHITE W/ RED STRIPE
GRAY
ORANGE W/ YELLOW STRIPE
ORANGE W/ RED STRIPE
BLUE W/ RED STRIPE
BLUE W/ YELLOW STRIPE
BLUE W/ RED STRIPE
ORANGE W/ RED STRIPE
UPPER DRAWER
LIGHT
WHITE W/ BLUE STRIPE
PURPLE
TAN
PINK
BLUE
ORANGE
YELLOW
WHITE W/ RED STRIPE
GRAY
GRAY W/ WHITE STRIPE
BLACK
WHITE
ORANGE
RED
J6
J5
J4
J2
E10
J7
J3
RED 1
2
3
WHITE
GRN/YLW
ORANGE 1
RED
YELLOW
BLUE W/ WHITE STRIPE
BLUE W/ WHITE STRIPE
BLUE W/ BLACK STRIPE
BLUE W/ BLACK STRIPE
PURPLE
TAN
BLUE W/ YELLOW STRIPE
WHITE
ORANGE
WHITE
RED
ORANGE
ORANGE W/ YELLOW STRIPE
WHITE 2
0
0
0
0
0
0
0
HEATSHRINK
J6
J4
J2
J5
(OPTIONAL)
TROUGH HEATER
LIGHTS
MFG TEST
TERMINALS
SOLENOID
ICEMAKER
CONTROL BOARD DETAIL
ICE MAKER
SWITCH
THIS WIRE ONLY
USED WITH SABBATH
MODE ACCESSORY
REF LIGHT
SWITCH
REF FAN
SWITCH
CONTROL BOARD
J7
J3
WIRING DIAGRAM
MODEL: 736TC/I-3
PART NUMBER 3758578 REV C
REFRIGERATOR
ICEMAKER
(OPTIONAL)
FILL TUBE
HEATER
SWITCH BOX
DRAWER EVAP
FAN MOTOR
REF EVAP.
FAN MOTOR
LIGHT
TERMINATOR
DEFROST
HEATER
POWER
SUPPLY
CORD
CONDENSER
FAN MOTOR
DISPLAY
SENSOR
(REF EVAP)
SENSOR
(REF CAB.)
REF COMPRESSOR,
UPPER
(REAR)
REF COMPRESSOR,
DRAWERS
(FRONT)
PIN 1
PIN 1
PIN 1
PIN 1
PIN 1
PIN 1
PIN 1

Table of Contents

Related product manuals