EasyManua.ls Logo

TECOM TS1067E - Connections

Default Icon
36 pages
Print Icon
To Next Page IconTo Next Page
To Next Page IconTo Next Page
To Previous Page IconTo Previous Page
To Previous Page IconTo Previous Page
Loading...
12
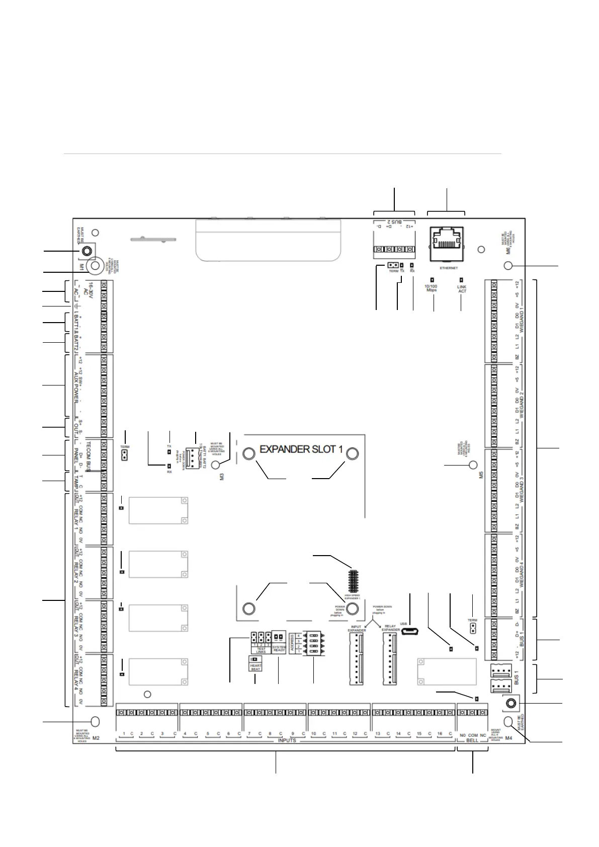
Connections
Figure 2 below identifies the locations and details of the connectors and other
items. See “Appendix D: Cabling requirementson page 36 for recommendations
for the application and wiring of Challenger equipment.
Figure 2: TS1067E board details
(1)
(2)
(1)
(1)
(1)
(2)
(18)
(17)
(3)
(4)
(5)
(6)
(7)
(8)
(9)
(10)
(11)
(12)
(13)
(16)
(15)
(14)
(24)
(28)
(28)
(28)
(28)
(26)
(25)
(30)
(32)
(33)
(34)
(28)
(38)
(1)
(1)
(35)
(21)
(29)
(36)
(37)
(31)
(27)
(39)
(40)
(39)
(19)
(23)
(22)
(20)

Related product manuals