EasyManua.ls Logo

Tektronix TDS5000B Series - Page 9

Tektronix TDS5000B Series
26 pages
Print Icon
To Next Page IconTo Next Page
To Next Page IconTo Next Page
To Previous Page IconTo Previous Page
To Previous Page IconTo Previous Page
Loading...
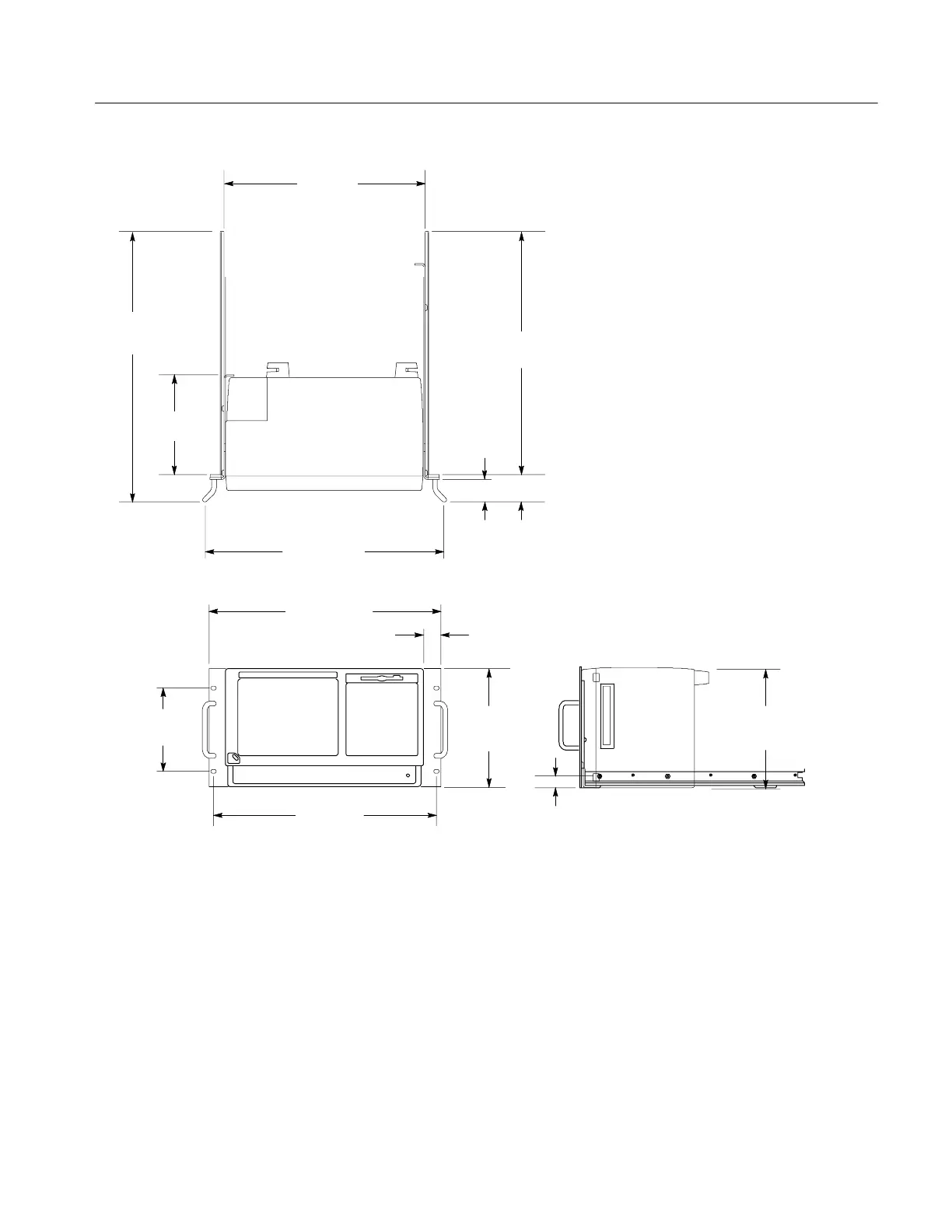
Kit Description
TDS5000B Series (Option 1R) Rackmount Kit
7
161.925 mm
(6.375 in)
500.024 mm
(19.686 in)
421.64 mm
(16.80 in)
323.850 mm
(12,750 in)
50.80 mm
(2.00 in)
60.325 mm
(2.375 in)
30.480 mm
(1.200 in)
265.938 mm
(10.470 in)
482.600 mm
(19.000 in)
29.72 mm
(1.170 in)
465.480 mm
(18.326 in)
258.639 mm
(10.160 in)
215.900 mm
(8.50 in)
348.048 mm
(15.120 in)
Figure 3: Instrument with rack adapter installed

Other manuals for Tektronix TDS5000B Series

Related product manuals