EasyManua.ls Logo

Tektronix TDS7104 - Page 192

Tektronix TDS7104
254 pages
Print Icon
To Next Page IconTo Next Page
To Next Page IconTo Next Page
To Previous Page IconTo Previous Page
To Previous Page IconTo Previous Page
Loading...
Removal and Installation Procedures
6-- 38
TDS7104 & TDS7054 Service Manual
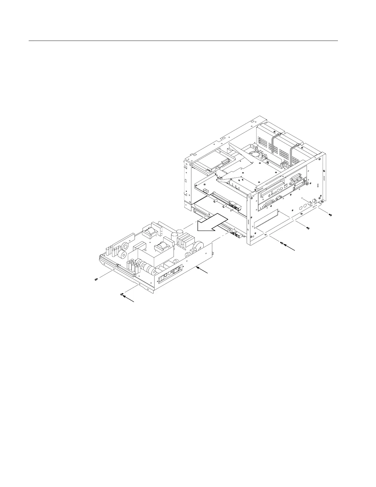
c. Grasp the low-voltage power supply and carefully slide the assembly out
of the oscilloscope.
4. Reinstallation: Do in reverse steps a through c to reinstall the low-voltage
power supply.
T--15 Torx
screw (3)
T--15 Torx
screw (2)
Low--voltage
power supply
Figure 6--23: Low-voltage power supply removal

Table of Contents

Other manuals for Tektronix TDS7104

Related product manuals