EasyManua.ls Logo

Terex Fermec 760 - Page 70

Terex Fermec 760
116 pages
Print Icon
To Next Page IconTo Next Page
To Next Page IconTo Next Page
To Previous Page IconTo Previous Page
To Previous Page IconTo Previous Page
Loading...
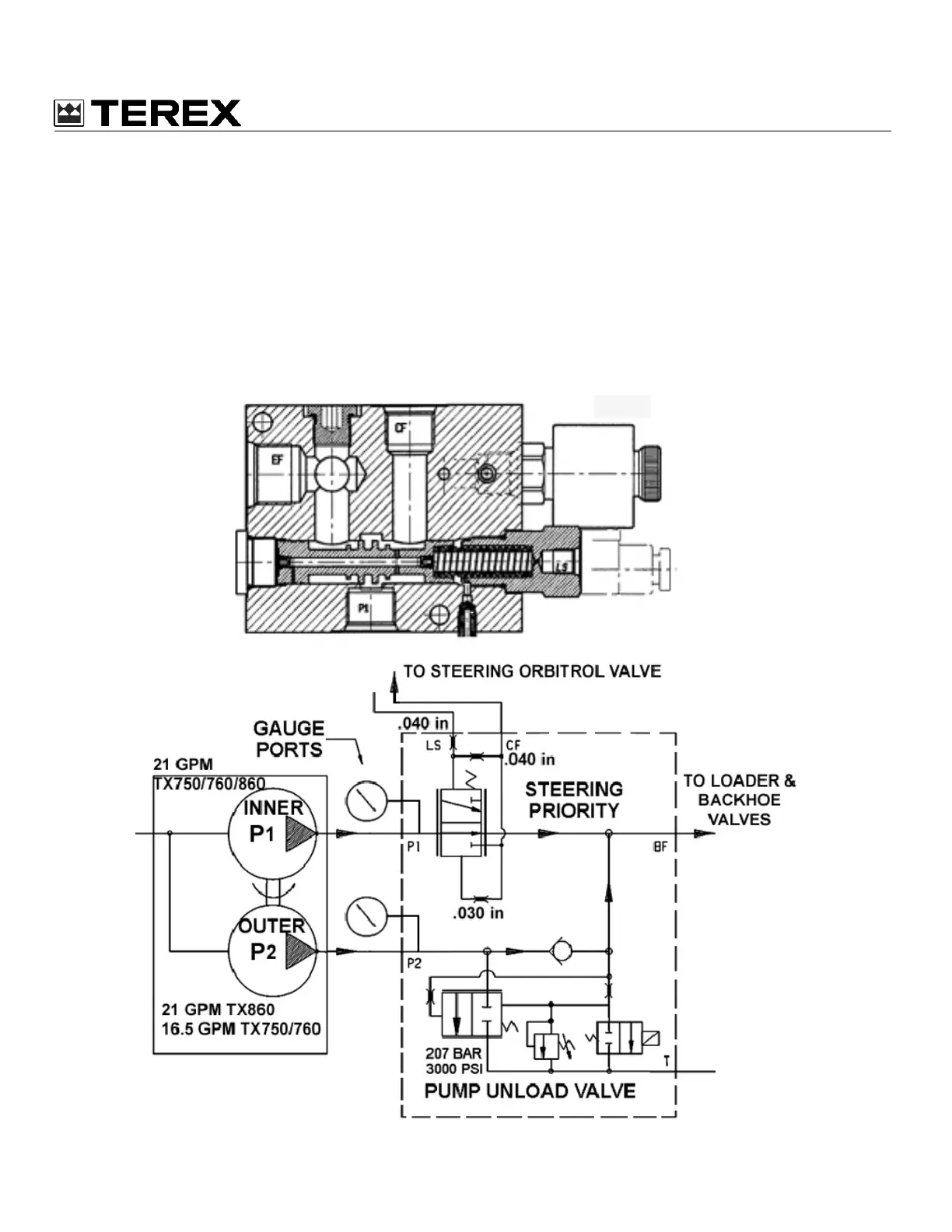
STEERING PRIORITY VALVE OPERATION
Oil from P1 enters the center port of the Steer Priority Spool and is diverted to the
controlled flow port CF. Pressure in CF is sensed through 2 small drillings in the Spool
and is directed to the end of the Spool through a .030 in. (0.8 mm) diameter orifice. When
sufficient oil is delivered to the Steering Orbitrol unit to satisfy the Steering requirement,
pressure in CF rises & when it exceeds the setting of the spring, the spool begins to shift
& the excess flow is diverted to EF to combine with the flow from P2 to the Hydraulic
Control Valves. A Load Sense hose directs pressure from the Steering Orbitrol back in to
LS. Thus regardless of the speed of the turning of the Steering Wheel, and regardless of
the flow demanded by the Steering Orbitrol, the Spool always maintains the pressure at
CF 130 PSI (9 Bar) higher than the load at the Steering Orbitrol Unit.
68
Service
Training
Contents