EasyManua.ls Logo

Thermo Scientific HyPerforma G3Pro - Page 34

Thermo Scientific HyPerforma G3Pro
37 pages
Print Icon
To Next Page IconTo Next Page
To Next Page IconTo Next Page
To Previous Page IconTo Previous Page
To Previous Page IconTo Previous Page
Loading...
Thermo Scientific HyPerforma G3Pro Universal Bioreactor Controller User’s Guide | 32
Table 4.2. G3Pro specifications (continued).
Item Description
Components
Thermal control
Thermal control unit (TCU) for jacketed vessels and optional
heated S.U.B.
External pumps
In addition to the pumps on the cart, additional external
pumps can be mounted on a pump tower, and optional analog
controlled case pumps
Agitator
Vessel adapter box (VAB) with VFD supplied for HyPerforma
vessels and third-party vessels
Alarm
Alarm relay for building alarm, optional stack light circuitry
(must order stack light separately)
Vent filter heater Option to have 2 or 4 vent filter heaters
Note: Because the utility tower is not free-standing and must be mounted on the cart, the cart is shipped with the Utility Tower.
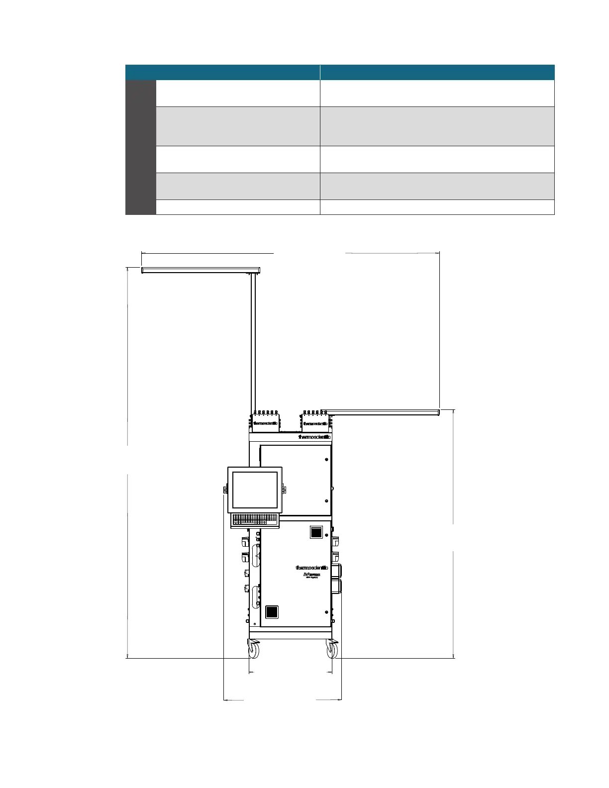
71.12 cm (28 in.)
101.6 cm (40 in.)
254 cm (100 in.)
335.28 cm (132 in.)
Maximum extension
213.36 cm (84 in.)
Minimum extension
Figure 4.1. Front view of G3Pro dimensions.
Chapter 4 | G3Pro specifications