EasyManua.ls Logo

Timpte Tender - Timpe Tender Trailer Hydraulic Schematic 577-60478

Timpte Tender
74 pages
Print Icon
To Next Page IconTo Next Page
To Next Page IconTo Next Page
To Previous Page IconTo Previous Page
To Previous Page IconTo Previous Page
Loading...
29
Date of Origin – 02/24/11
Updated – 02/03/20
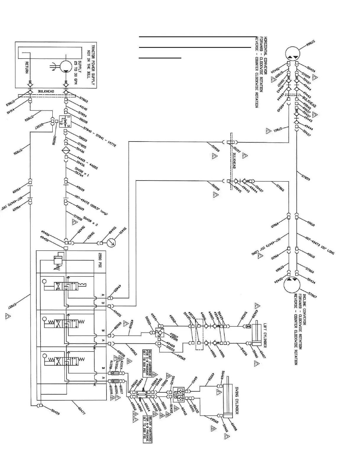
TIMPTE TENDER TRAILER
HYDRAULIC SCHEMATIC
577-60478

Table of Contents

Related product manuals