EasyManua.ls Logo

Timpte Tender - Air-Ride Suspension Schematic

Timpte Tender
74 pages
Print Icon
To Next Page IconTo Next Page
To Next Page IconTo Next Page
To Previous Page IconTo Previous Page
To Previous Page IconTo Previous Page
Loading...
55
Date of Origin – 02/24/11
Updated – 02/03/20
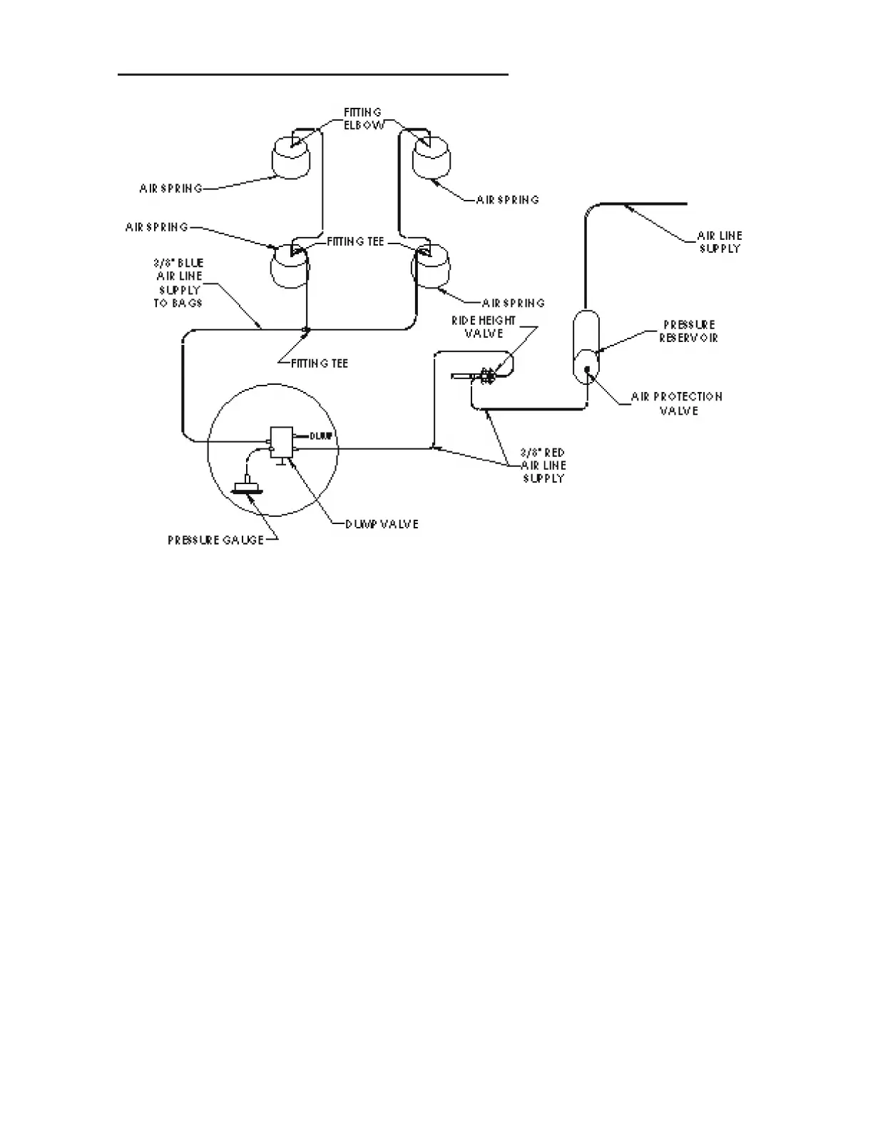
AIR RIDE SUSPENSION SCHEMATIC
Trouble shooting hints for air piping systems:
Check all push-in and T-ttings. Are they locked into place?
Check all threaded connections to the spring brakes
Check push-in ttings at the dump valve and/or lift box (if applicable)
Check push-in tting at ride height box (bottom of the box)
Threaded connections at the gladhands on the nose of the trailer
Check push-in ttings at top of air bags
Check for adequate supply of air from tractor
Is volume and pressure great enough to open Pressure Protection Valve
Check free travel and response of Ride Height Valve
Check lters at the gladhand and Pressure Protection Valve

Table of Contents

Related product manuals