EasyManua.ls Logo

Topcon ES-62 - Page 55

Topcon ES-62
216 pages
Print Icon
To Next Page IconTo Next Page
To Next Page IconTo Next Page
To Previous Page IconTo Previous Page
To Previous Page IconTo Previous Page
Loading...
4-14
4 DISTANCE MEASUREMENT
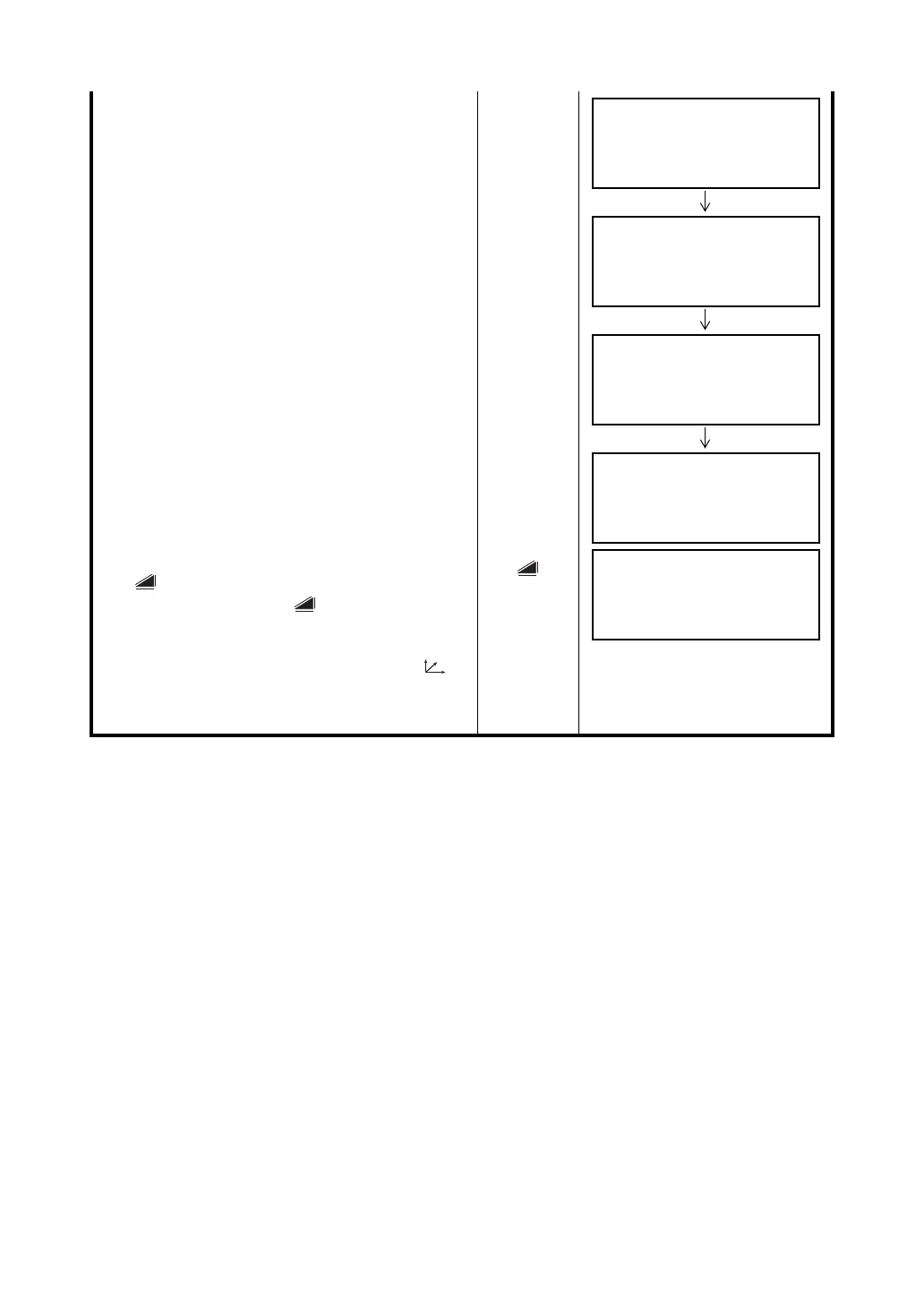
6 Collimate the center of the column (P1) and press
the {F1} (MEAS) key.
N-time measuring will start.
After the measurement, angle measuring display
of the left side (P2) will be shown.
Collimate
P1
{F1}
7 Collimate the left side of the column (P2) and
press the {F4} (SET) key.
After the measurement, angle measuring display
of the right side (P3) will be shown.
Collimate
P2
{F4}
8 Collimate the right side of the column (P3) and
press the {F4} (SET) key.
Collimate
P3
{F4}
The distance between the instrument and center
of the column (P0) will be calculated.
9 To show the relative elevation (VD), press the
{} key.
Each time pressing the {} key, horizontal
distance, relative elevation and slope distance are
shown in sequence.
{}
To show coordinate of point P0, press the {}
key.
10 To escape the measuring, press the {ESC} key.
The display returns to the previous mode.
COLUMN OFFSET
Center
N
P
HD* [n] << m
>Measuring...
COLUMN OFFSET
Left
N
P
HR: 120°30'40"
--- --- --- SET
COLUMN OFFSET
Right
N
P
HR: 180°30'40"
--- --- --- SET
COLUMN OFFSET
HR: 150°30'40"
N
P
HD: 43.321 m
NEXT --- --- ---
COLUMN OFFSET
HR: 150°30'40"
N
P
VD: 2.321 m
NEXT --- --- ---

Table of Contents

Related product manuals