EasyManua.ls Logo

Toshiba P9 ASD - Standard Startup Wizard Parameter Requirements

Toshiba P9 ASD
105 pages
To Next Page IconTo Next Page
To Next Page IconTo Next Page
To Previous Page IconTo Previous Page
To Previous Page IconTo Previous Page
Loading...
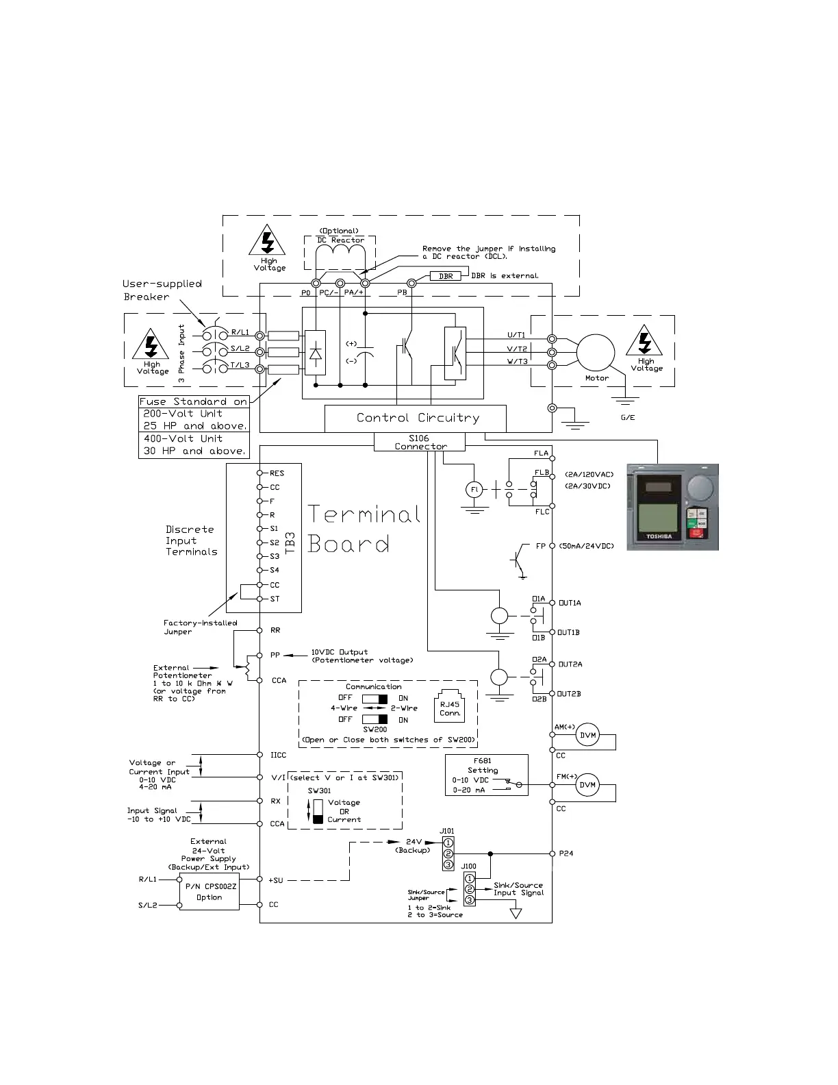
22 P9 ASD Quick Start Guide
Typical Connection Diagram
Figure 20. The P9 ASD Typical Connection Diagram.
Note: The AM, FM, and the +SU analog terminals are referenced to CC.
The RR, RX, P24, and the PP analog terminals are referenced to CCA.
The isolated V/I analog terminal references IICC.
Note: When connecting multiple wires to the PA, PB, PC, or PO terminals, do
not connect a solid wire and a stranded wire to the same terminal.
Phone: 800.894.0412 - Fax: 888.723.4773 - Web: www .ctiautomation.net - Email: info@ctiautomation.net

Table of Contents

Related product manuals