EasyManua.ls Logo

Toto EcoPower - Installation Procedure - Small Cover

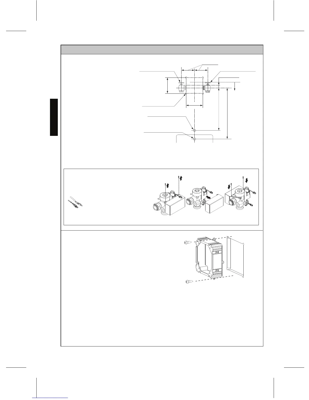
Toto EcoPower
84 pages
Print Icon
To Next Page IconTo Next Page
To Next Page IconTo Next Page
To Previous Page IconTo Previous Page
To Previous Page IconTo Previous Page
Loading...
10
INSTALLATION PROCEDURE — SMALL COVER
NOTE:
To use with a left water supply, detach
the controller and remount it to
opposite side of valve body.
5. Secure back frame to the wall with two screws the
base frame. Other base frame installation options
with stringer and for concrete wall on next page.
Wall thickness must be 1/2" (13mm)
minimum and 1-3/8"(35mm) maximum.
If your wall thickness is less than
1/2" (13mm), please attach wooden
frame behind the wall.
1. Determine the location of the
water supply pipe.
3. Attach the control stop to
the pipe.
4. Bore a guide hole for the flush
pipe into the wall.
NOTE: Thread sealing
compounds should be
used on the male NPT
threads only.
Detatch
Remount
ENGLISH
4 x Ø5/16" (Ø8mm) hole
Left water supply pipe
1”NPT (toilet), 3/4” (urinal)
Right water supply pipe
1”NPT (toilet), 3/4” (urinal)
Toilet top spud
Ø2-3/16” (Ø56 mm) hole
Urinal back spud
Ø1-5/16” (Ø33 mm) hole
Toilet back spud
Ø2-3/16” (Ø55 mm) hole
X”
1-1/4” (31 mm)
CL of sensor
** 3-11/16”
(94mm)
11” (279mm)
16” (406mm)
** 3-11/16”
(94 mm)
* X”, ‡ = At least 5” clearance from sensor to tip of toilet seat up position or
to top of grab bar is required to avoid false detection.
** Opening in wall
4-3/4” ± 1/2”
(120 ± 13mm)
Urinal top spud
Ø1-5/16” (Ø33 mm) hole
2. If necessary, slide a sweat
solder adapter on the water
supply pipe
Protect the wire connections
inside the controller’s case.

Table of Contents

Other manuals for Toto EcoPower

Related product manuals