EasyManua.ls Logo

Toto EcoPower - Page 12

Toto EcoPower
84 pages
Print Icon
To Next Page IconTo Next Page
To Next Page IconTo Next Page
To Previous Page IconTo Previous Page
To Previous Page IconTo Previous Page
Loading...
12
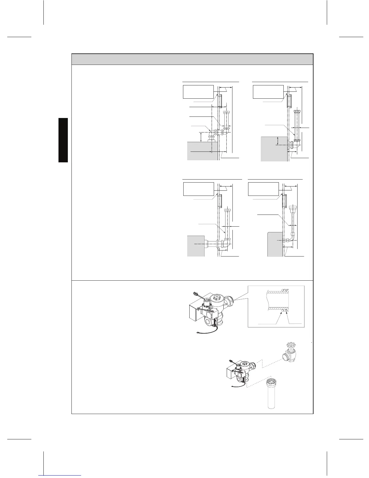
INSTALLATION PROCEDURE — SMALL COVER
Snap ring
O-ring
8. Make sure that the o-ring fits in the
groove at the end of the Flush Valve
tailpiece.
9. Exercise care to prevent damage to
the o-ring when inserting the tailpiece
into the control stop. For additional
lubrication, wet the o-ring with water.
6. Pass the flush pipe and the vacuum
breaker through the guide hole (Step 3)
and mount them on the bowl.
7. If required, cut the vacuum breaker
tube to the proper length.
10. Connect the Flush Valve with the control
stop and vacuum breaker tube.
11. Tighten the coupling nut with a wrench to
prevent a water leak.
ENGLISH
TET3LA(X)32, TET3GA32, TET3UA(X)32
TEU3LA(X)12, TEU3UA(X)12
TET3LA(X)31, TET3UA(X)31
TET3GA31
Bowl or Urinal
6~6-1/2”
(152~165mm)
1-1/2” (38mm)
or 3/4” (19mm)
1-1/2”
(38mm)
5”
(127mm)
2-1/4”~2-3/4”
(57~70mm)
3-3/4”~4-7/8”
(95~124mm)
3-3/4”~4-7/8”
(95~124mm)
Top spud
Back spud
Wall mount
3”
(76mm)
Bowl
TET3LA(X)33, TET3UA(X)33
TET3GA33
TEU3LA(X)11, TEU3LA(X)21
TEU3UA(X)11
3-3/4”~4-7/8”
(95~124mm)
Urinal
Back spud
Floor mount
Bowl
1-1/2”
(38mm)
1-1/4” (32mm)
or 3/4” (19mm)
Wall surface
Wall surface
Wall surface
Wall surface
7" (178mm) min space
in wall with a min
12" x 12" access panel
or walk-in chase
7" (178mm) min space
in wall with a min
12" x 12" access panel
or walk-in chase
7" (178mm) min space
in wall with a min
12" x 12" access panel
or walk-in chase
7" (178mm) min space
in wall with a min
12" x 12" access panel
or walk-in chase
3-3/4”~4-7/8”
(95~124mm)

Table of Contents

Other manuals for Toto EcoPower

Related product manuals