EasyManua.ls Logo

Toto EcoPower - Page 30

Toto EcoPower
84 pages
Print Icon
To Next Page IconTo Next Page
To Next Page IconTo Next Page
To Previous Page IconTo Previous Page
To Previous Page IconTo Previous Page
Loading...
30
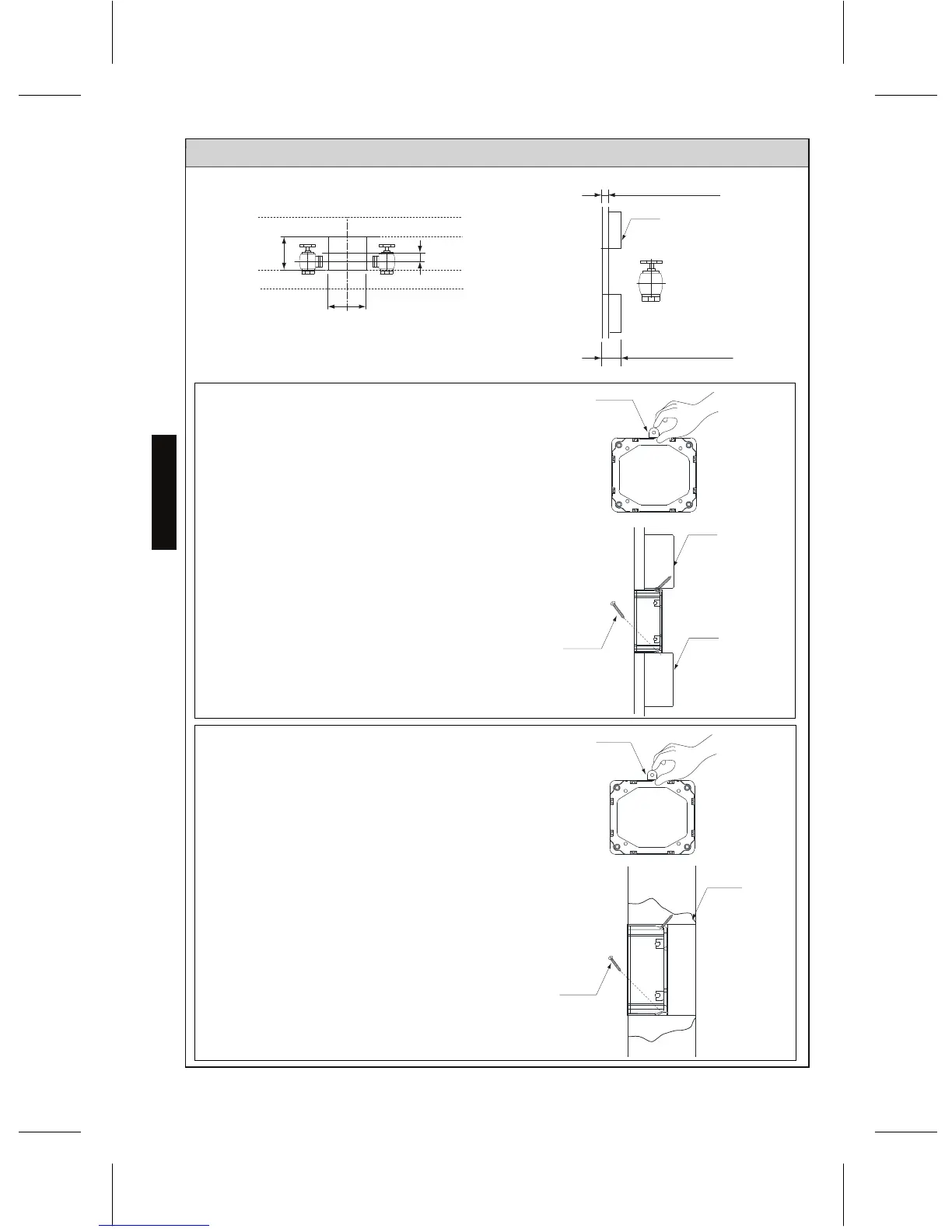
Opción 5A (con tirante)
Max.1”(25mm)
Min.1-3/8”(35mm)
Tornillos
Tirante
Tirante
Pestaña
Tirante
Opción 5B (para pared de hormigón)
Tornillos
Mortero
Pestaña
1. Retire todas las pestañas al lado del bastidor base.
2. Fije el bastidor base al tirante con 4 tornillos
(preparado en el lugar).
1. Recorte un lugar para la cubierta en la pared.
2. Retire todas las pestañas al lado del bastidor
base antes de la instalación.
3. Fijar el bastidor base en su lugar con un
mortero.
4. Asegure el bastidor base con 4 tornillos
(preparado en el lugar), si es necesario.
Otras opciones de instalación del bastidor base
PROCEDIMIENTO DE INSTALACIÓN — CUBIERTA PEQUEÑA
ESPAÑOL
4-1/3”
(110mm)
4-1/3”
(110mm)
3/4”
(19mm)

Table of Contents

Other manuals for Toto EcoPower

Related product manuals