EasyManua.ls Logo

Toto EcoPower - Page 46

Toto EcoPower
84 pages
Print Icon
To Next Page IconTo Next Page
To Next Page IconTo Next Page
To Previous Page IconTo Previous Page
To Previous Page IconTo Previous Page
Loading...
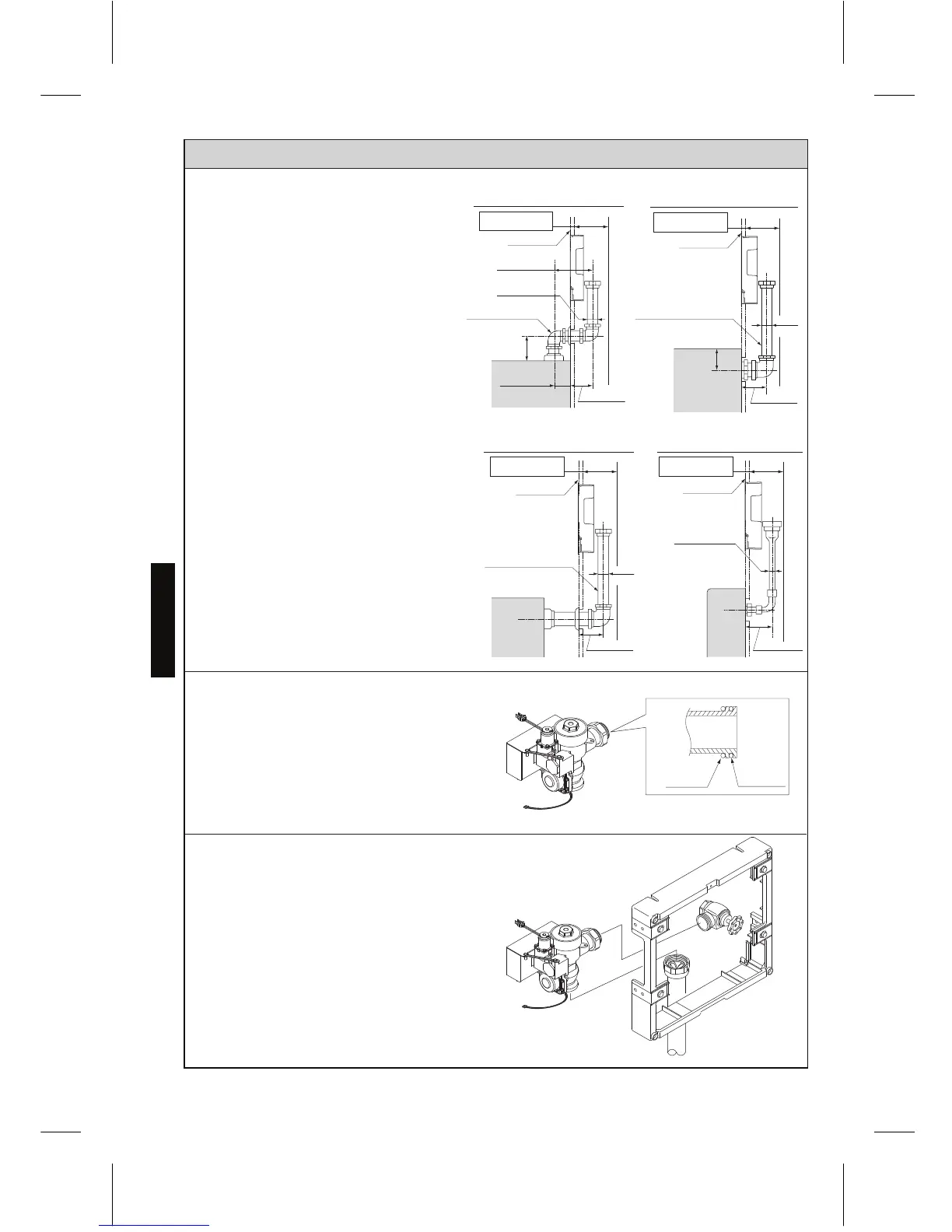
TET2LA(X)32, TET2GA32, TET2UA(X)32
TEU2LA(X)12, TEU2UA(X)12
TET2LA(X)31, TET2UA(X)31
TET2GA31
TET2LA(X)33, TET2UA(X)33
TET2GA33
TEU2LA(X)11, TEU2LA(X)21
TEU2UA(X)11
Toilette ou urinoir
Mural
6~6-1/2”
(152~165mm)
1-1/2” (38mm)
ou 3/4” (19mm)
1-1/2”
(38mm)
5”
(127mm)
2-1/4”~2-3/4”
(57~70mm)
3-3/4”~4-7/8”
(95~124mm)
3-3/4”~4-7/8”
(95~124mm)
Raccord supérieure Raccord postérieur (Mural)
3”
(76mm)
Toilette
3-3/4”~4-7/8”
(95~124mm)
3-3/4”~4-7/8”
(95~124mm)
Urinoir
Raccord postérieur (Sol)
Toilette
1-1/2”
(38mm)
1-1/4” (32mm)
ou 3/4” (19mm)
Mural
Mural
Mural
Espace min. de 7po
(178mm) dans le mur
Espace min. de 7po
(178mm) dans le mur
Espace min. de 7po
(178mm) dans le mur
Espace min. de 7po
(178mm) dans le mur
FRANÇAIS
46
7. Passez le tuyau de chasse et le reniflard
dans le trou de guidage et montez-les
sur la cuvette.
8. Si nécessaire, coupez le tube de reniflard
à la bonne longueur.
9. Assurez-vous que le joint torique s'insère
dans la rainure à la pièce de raccordement
de la valve de chasse.
REMARQUE :
Prenez soin de ne pas endommager le
joint torique lorsque vous insérez la pièce
de raccordement dans la soupape de contrôle.
Si la lubrification est nécessaire,
mouiller le joint torique avec de l'eau.
10. Raccordez la valve de chasse avec la
soupape de contrôle et le tuyau de reniflard.
PROCÉDURE D'INSTALLATION — GRAND COUVERCLE
Joint torique
Anneau de
retenue

Table of Contents

Other manuals for Toto EcoPower

Related product manuals