EasyManua.ls Logo

Toto EcoPower - Page 79

Toto EcoPower
84 pages
Print Icon
To Next Page IconTo Next Page
To Next Page IconTo Next Page
To Previous Page IconTo Previous Page
To Previous Page IconTo Previous Page
Loading...
Small Cover
79
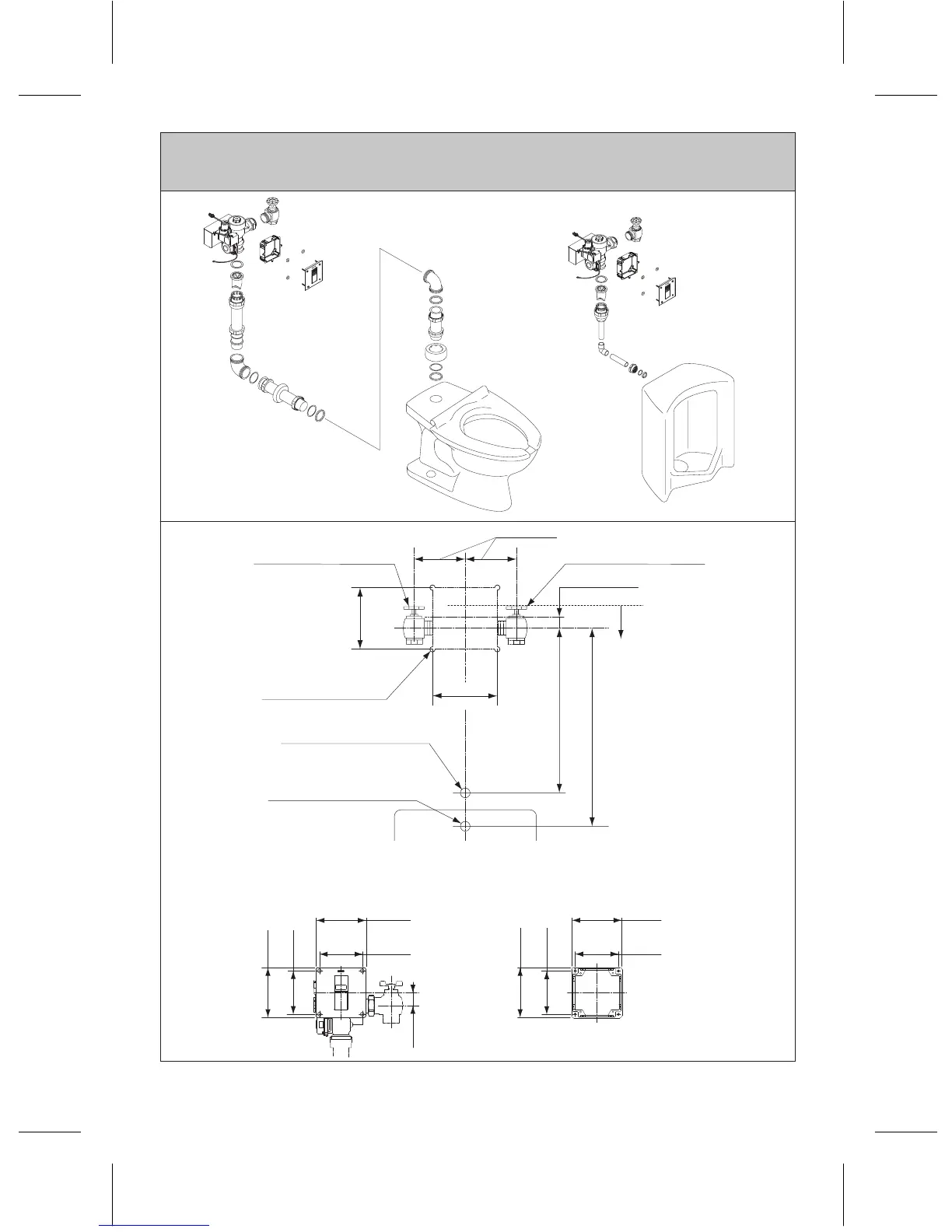
ROUGH-IN DIMENSIONS / BOSQUEJO /
ROBINETTERIE BRUTE/DIMENSÕES APROXIMADAS
4 x Ø5/16" (Ø8mm) hole
Left water supply
1”NPT (toilet), 3/4” (urinal)
Right water supply
1”NPT (toilet), 3/4” (urinal)
Toilet top spud
Ø2-3/16” (Ø56 mm) hole
Urinal back spud
Ø1-5/16” (Ø33 mm) hole
Toilet back spud
Ø2-3/16” (Ø55 mm) hole
X”
1-1/4” (31 mm)
CL of sensor
** 3-11/16”
(94mm)
11” (279mm)
16” (406mm)
** 3-11/16”
(94 mm)
* X”, ‡ = At least 5” clearance from sensor to tip of toilet seat up position or
to top of grab bar is required to avoid false detection.
** Opening in wall
4-3/4”
(120mm)
3-11/16”
(94mm)
4-3/8”
(110mm)
3-11/16”
(94mm)
4-3/8”
(110mm)
3-11/16”
(94mm)
4-3/4”
120mm)
3-11/16”
(94mm)
1-1/4”
(31mm)
4-3/4” ± 1/2”
(120 ± 13mm)
Urinal top spud
Ø1-5/16” (Ø33mm) hole

Table of Contents

Other manuals for Toto EcoPower

Related product manuals