EasyManua.ls Logo

Trane Technologies 5TAMXB02AV21DA - Outline Drawing

Trane Technologies 5TAMXB02AV21DA
80 pages
Print Icon
To Next Page IconTo Next Page
To Next Page IconTo Next Page
To Previous Page IconTo Previous Page
To Previous Page IconTo Previous Page
Loading...
18-GJ96D1-1B-EN
9
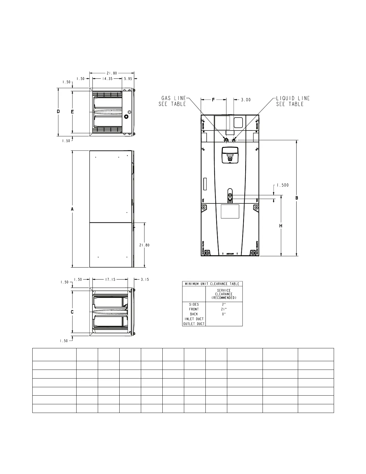
Outline Drawing
NOTE: THIS UNIT IS APPROVED FOR INSTALLATION
CLEARANCES TO COMBUSTIBLE MATERIAL
AS STATED ON THE UNIT RATING NAMEPLATE
Model Number A B C D E F H
FLOW
CONTROL
GAS LINE
BRAZE
LIQ LINE
BRAZE
5TAMXB02AV21DA 49.9 39.6 14.5 17.5 14.5 7.3 24.4 EEV
3/4 3/8
5TAMXC03AV31DA 55.7 45.5 18.4 21.3 18.4 9.2 24.8 EEV
3/4 3/8
5TAMXD04AV31DA 56.9 46.7 20.5 23.5 20.5 10.3 24.2 EEV
7/8 3/8
5TAMXD05AV41DA 56.9 46.7 20.5 23.5 20.5 10.3 24.5 EEV
7/8 3/8
5TAMXD06AV41DA 61.7 51.5 20.5 23.5 20.5 10.3 24.9 EEV
7/8 3/8
5TAMXD07AV51DA 61.7 51.5 20.5 23.5 20.5 10.3 24.9 EEV
7/8 3/8

Related product manuals