EasyManua.ls Logo

Trane GECA - Cabinet Dimensions

Trane GECA
68 pages
Print Icon
To Next Page IconTo Next Page
To Next Page IconTo Next Page
To Previous Page IconTo Previous Page
To Previous Page IconTo Previous Page
Loading...
WSHP-PRC004-EN50
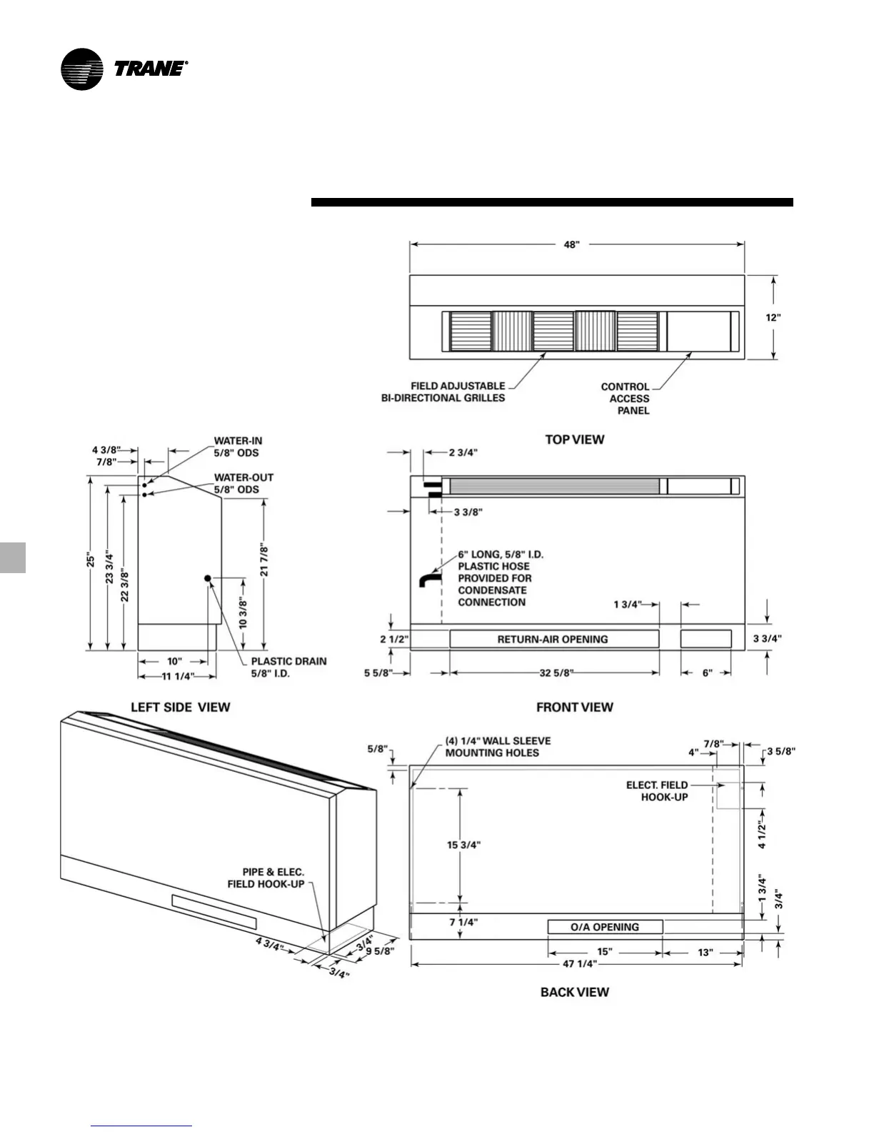
Dimensional
Data
LH Cabinet Std
Length/Height
Left Hand Piping Connection
GECA 006-015
1" = 25.4 mm

Related product manuals