EasyManua.ls Logo

Trane GECA - Page 51

Trane GECA
68 pages
Print Icon
To Next Page IconTo Next Page
To Next Page IconTo Next Page
To Previous Page IconTo Previous Page
To Previous Page IconTo Previous Page
Loading...
51
WSHP-PRC004-EN
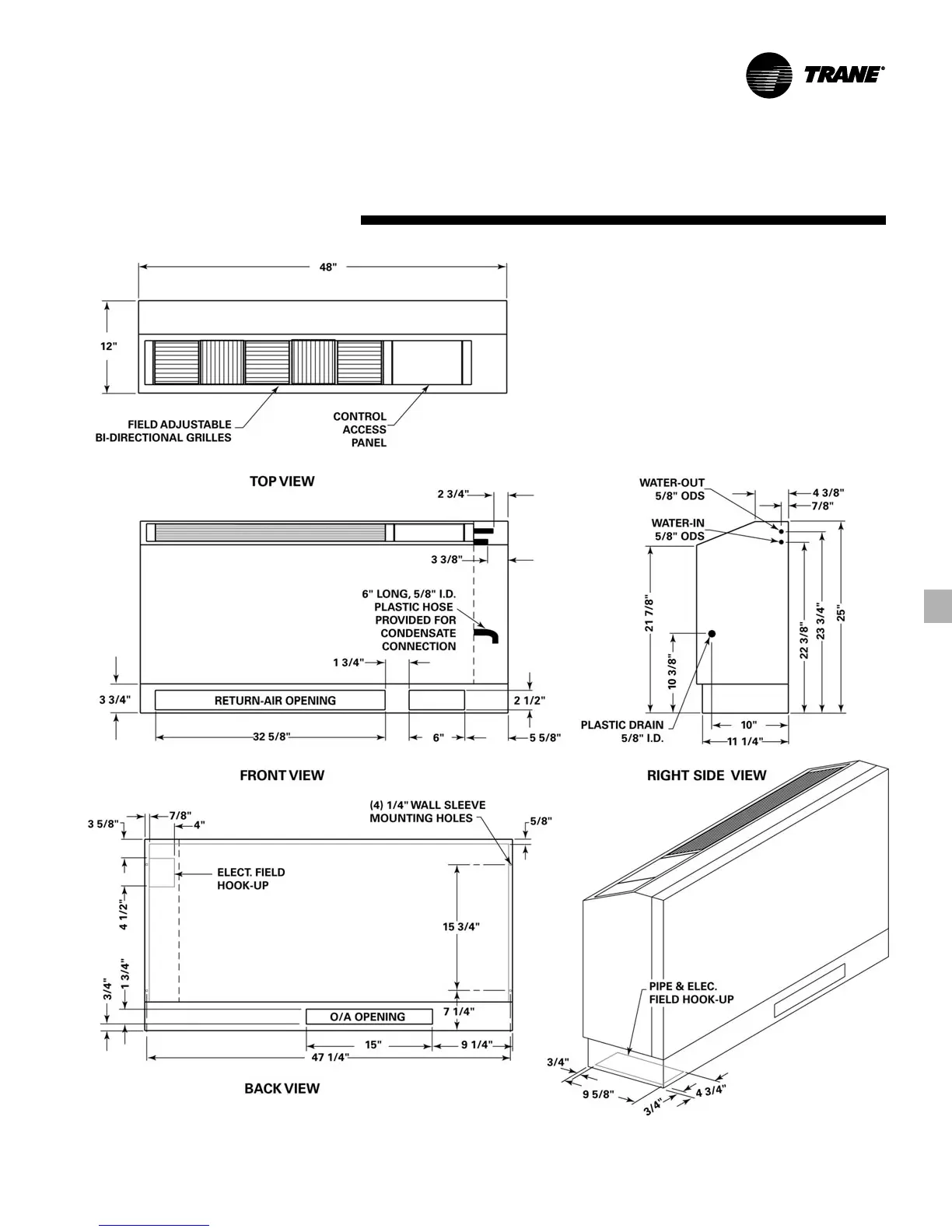
Dimensional
Data
RH Cabinet Std
Length/Height
Right Hand Piping Connection
GECA 006-015
1" = 25.4 mm

Related product manuals