EasyManua.ls Logo

Trane GECA - Page 52

Trane GECA
68 pages
Print Icon
To Next Page IconTo Next Page
To Next Page IconTo Next Page
To Previous Page IconTo Previous Page
To Previous Page IconTo Previous Page
Loading...
WSHP-PRC004-EN52
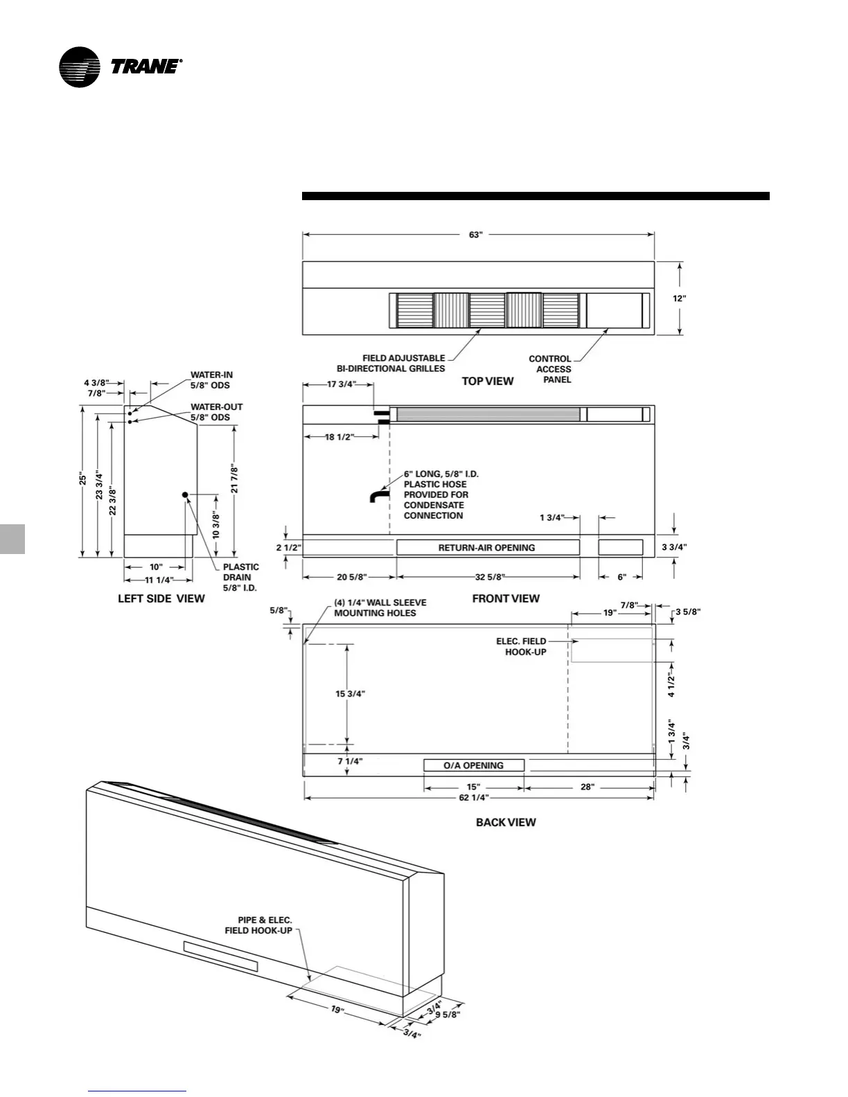
Dimensional
Data
LH Extended
Length Cabinet
Left Hand Piping Connection
(Extended Length)
GECA 006-015
1" = 25.4 mm

Related product manuals