EasyManua.ls Logo

Trane GRCA - Page 21

Trane GRCA
64 pages
Print Icon
To Next Page IconTo Next Page
To Next Page IconTo Next Page
To Previous Page IconTo Previous Page
To Previous Page IconTo Previous Page
Loading...
MUA-SVX003B-EN
21
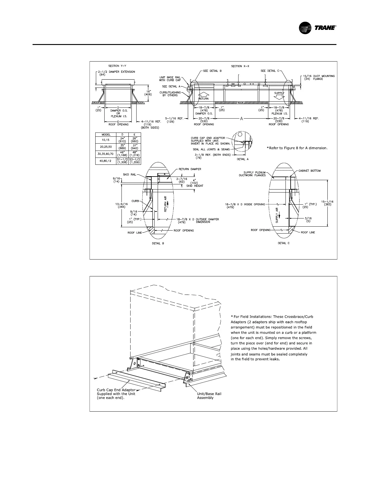
Figure 6. Roof Opening Dimensional Data
Figure 7. Unit/Curb End Rail Assembly
IInnssttaallllaattiioonn

Other manuals for Trane GRCA

Related product manuals