EasyManua.ls Logo

Trane IntelliPak RA 20

Trane IntelliPak RA 20
140 pages
To Next Page IconTo Next Page
To Next Page IconTo Next Page
To Previous Page IconTo Previous Page
To Previous Page IconTo Previous Page
Loading...
18
RT-SVX063E-EN
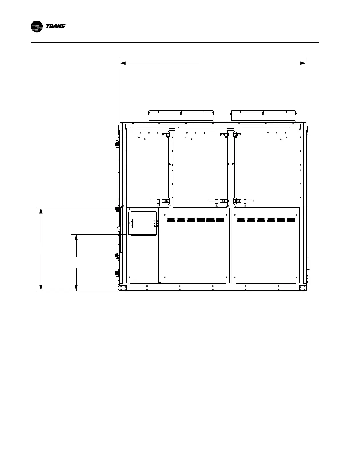
Figure 3. 40 to 55 ton front view (inches)
27.31
40.28
90.63
FRONT VIEW
40-55T
DDiimmeennssiioonnaall DDaattaa

Table of Contents

Related product manuals