EasyManua.ls Logo

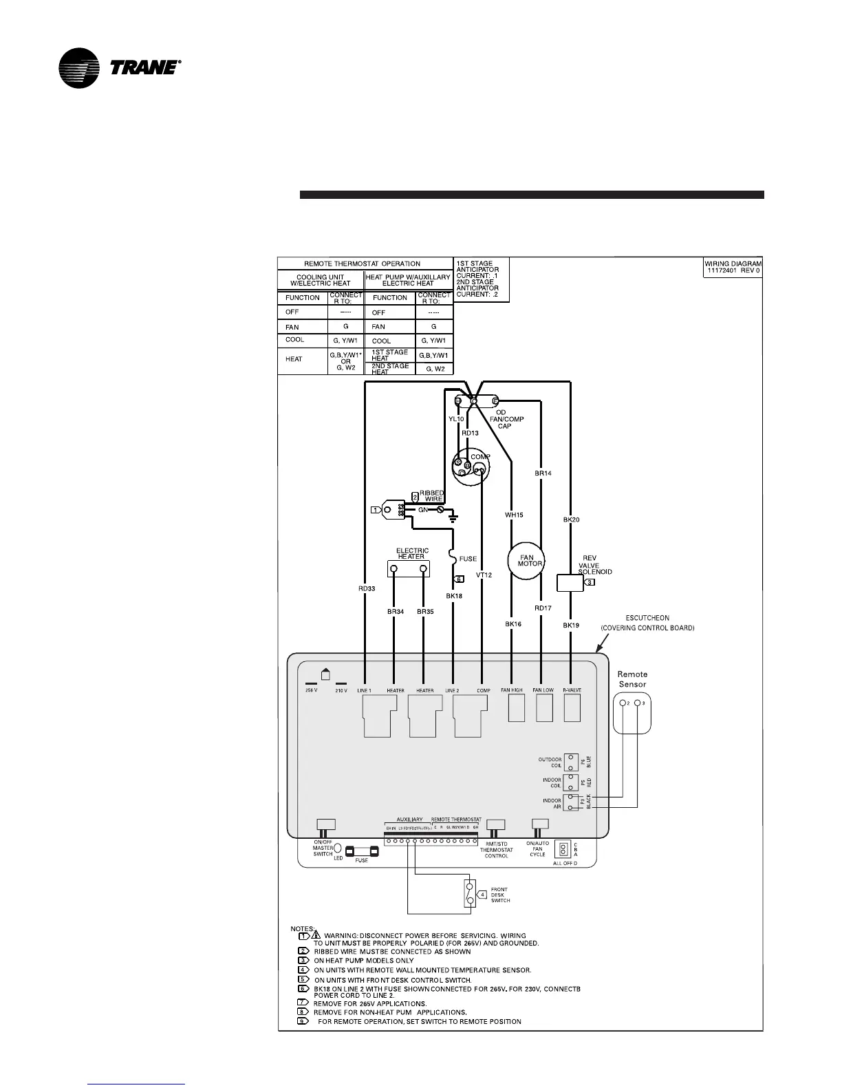
Trane PTEC-070 - Schematic Diagrams; One Stage Heat Schematic (Standard Unit)

Trane PTEC-070
64 pages
Print Icon
To Next Page IconTo Next Page
To Next Page IconTo Next Page
To Previous Page IconTo Previous Page
To Previous Page IconTo Previous Page
Loading...
PTEC-M-1A
52
Schematic
Diagrams
PTEC and PTHC Standard Unit - One Stage Heat (Temperature Sensor and Front Desk Control Added)

Related product manuals