EasyManua.ls Logo

Trane PTEC-150 - Remote Thermostat Schematic Diagram

Trane PTEC-150
64 pages
Print Icon
To Next Page IconTo Next Page
To Next Page IconTo Next Page
To Previous Page IconTo Previous Page
To Previous Page IconTo Previous Page
Loading...
53
PTEC-M-1A
Schematic
Diagrams
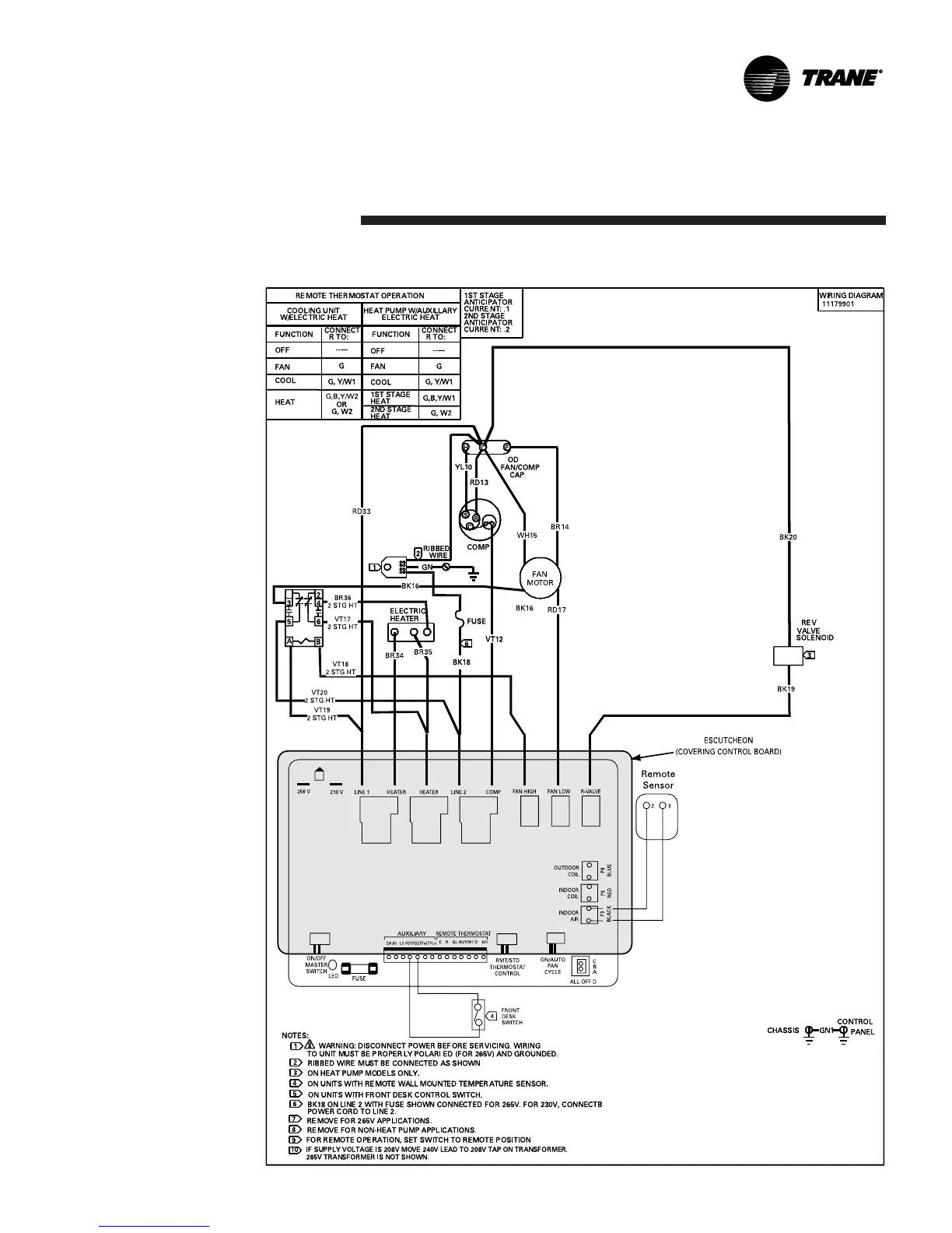
PTEC and PTHC Standard Unit - Two Stage Heat (Temperature Sensor and Front Desk Control Added)

Related product manuals