EasyManua.ls Logo

Trane R Series - Condenser and Subcooler

Trane R Series
170 pages
To Next Page IconTo Next Page
To Next Page IconTo Next Page
To Previous Page IconTo Previous Page
To Previous Page IconTo Previous Page
Loading...
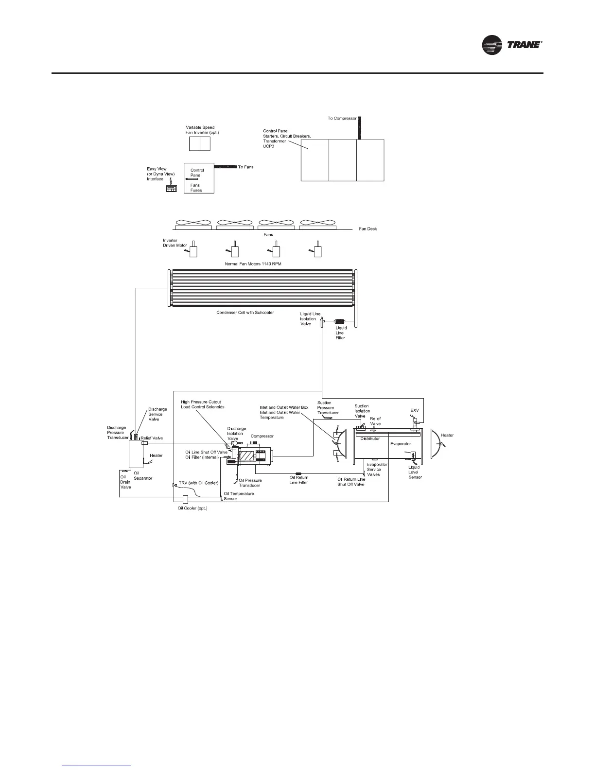
Operating Principles
RTAC-SVX01J-EN 107
Condenser and Subcooler
Condenser and subcooler are similar to the condenser
used in RTAA chillers.The heat exchanger consists of 3/8”
tubes that contain refrigerant, large fins that are in the air
flow and fans that draw air through fins. Heat is transferred
from the refrigerant through the tubes and fins to the air.
High pressure gas from the compressor enters the tubes of
the condenser through a distribution header (state 2b). As
refrigerant flows through the tubes, the heat of
compression and cooling load are rejected to the air. In
this process the refrigerant is de-superheated, condensed
(states 2b to 3) and finally subcooled (states 3 to 3b) to a
temperature slightly above the ambient air temperature.
The subcooled liquid refrigerant is collected in the leaving
header where it is transferred to the liquid line (state 3b).
Controls algorithm always runs as many fans as possible
without reducing differential pressure (discharge minus
suction) below setpoint, 60 psid (4.2 bar). If a warm enough
ambient is sensed, all fans will run. If ambient is cooler,
some fans are shut off to maintain pressure differential.
Fan staging depends on chiller load, evaporator pressure,
condenser effectiveness, ambient temperature, and
numbers and sizes of fans installed on circuit.
Algorithm pre-starts fans (based on ambient and water
temperatures) when a circuit starts the compressor. (For
rare conditions such as during some pull-downs, a steady
fan state would either violate the 60 psid (4.2 bar) setpoint
or cause a high pressure cut-out; in those conditions a fan
will cycle on and off.)
For up to two minutes after chiller start-up, the setpoint is
35 psi (2.45 bar) difference, and then before the controls
adjust gradually over half a minute up to 60 psi (4.2 bar).
Figure 32. System schematic

Table of Contents

Other manuals for Trane R Series

Related product manuals