EasyManua.ls Logo

TurboChef HHB-8028

TurboChef HHB-8028
117 pages
To Next Page IconTo Next Page
To Next Page IconTo Next Page
To Previous Page IconTo Previous Page
To Previous Page IconTo Previous Page
Loading...
1
THEORY OF OPERATION, SPECIFICATIONS AND INSTALLATION
T
HEORY OF OPERATION
The TurboChef
®
High h Batch speed cook oven
uses high heat transfer rates developed by force air
impingement to rapidly cook food. The High h
batch utilizes top and bottom Jetplates that have
been optimized for specific food items. The plates
can be easily removed and replaced to facilitate
either higher or lower heat transfer rates. As a result,
the operator can cook foods that require maximum
browning/caramelizing (high heat transfer), or more
delicate foods that require low heat transfer to
ensure quality is not compromised.
The technology is similar to but about twice as fast
as the fastest impingement conveyor oven. The High
h Batch utilizes a variable speed blower, oscillating
rack, and Catalytic Converter to provide maximum
speed, minimal energy input, ventless operation and
the highest food quality.
CERTIFICATIONS
UL, cUL, NSF
D
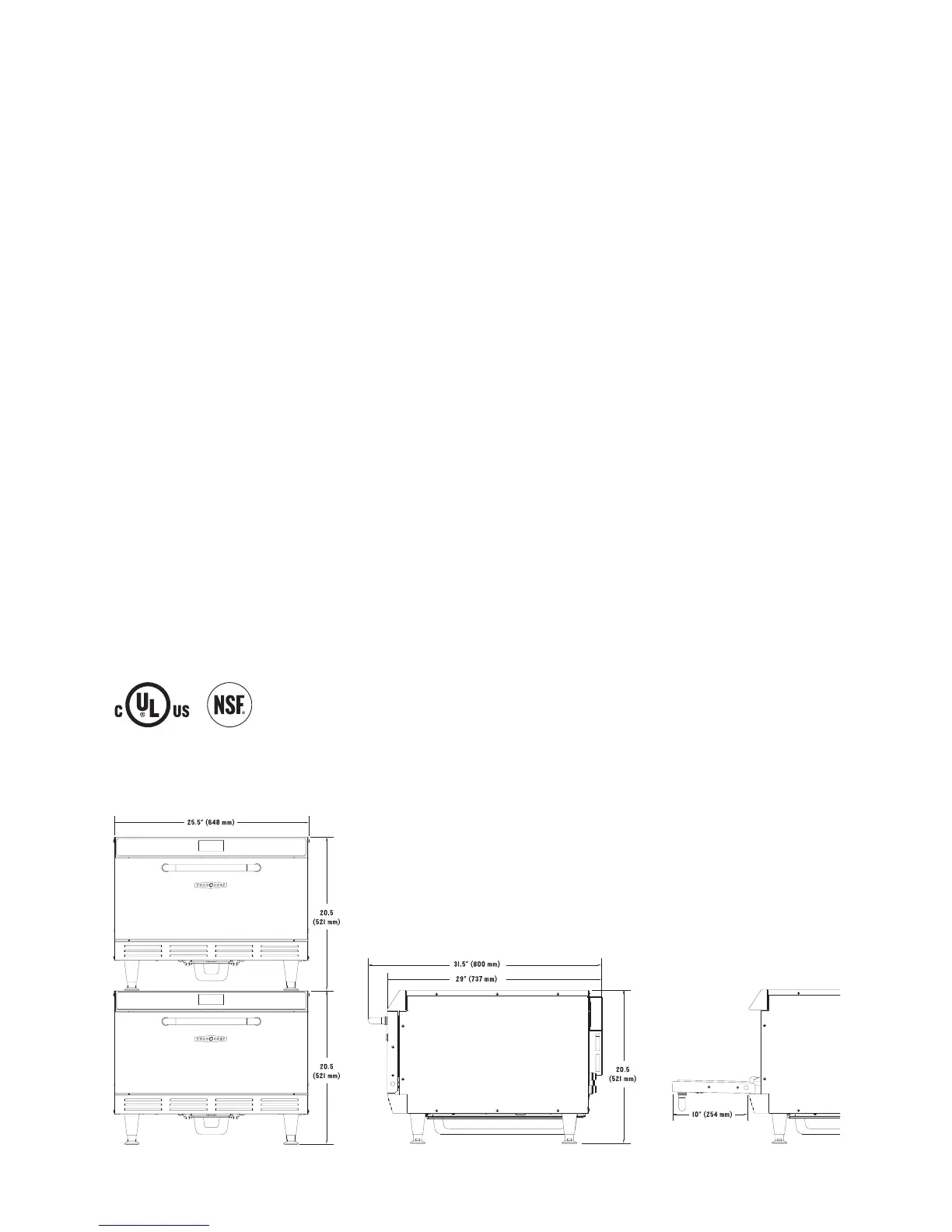
IMENSIONS
Single Units
Height 20.5
′′ (521 mm)
Width 25.5
′′ (648 mm)
Depth 29
′′ (737 mm)
with handle 31.5
′′ (800 mm)
Weight 157 lbs. (71 kg)
Double Units (requires Stacking Kit)
Height 41
′′ (1042 mm)
Width 25.5
′′ (648 mm)
Depth 29
′′ (737 mm)
with handle 31.5
′′ (800 mm)
Weight 314 lbs. (42 kg)
Cook Chamber
Height 8′′ (203 mm)
Width 18.75
′′ (476 mm)
Depth
16.75
(425 mm)
Volume 1.45 cu. ft. (41.1 liters)
Wall Clearance
Top 2 (51 mm)
Sides 2
(51 mm)
 : High h Batch Dimensions

Table of Contents

Related product manuals