EasyManua.ls Logo

TurboChef HHB-8028

TurboChef HHB-8028
117 pages
To Next Page IconTo Next Page
To Next Page IconTo Next Page
To Previous Page IconTo Previous Page
To Previous Page IconTo Previous Page
Loading...
61
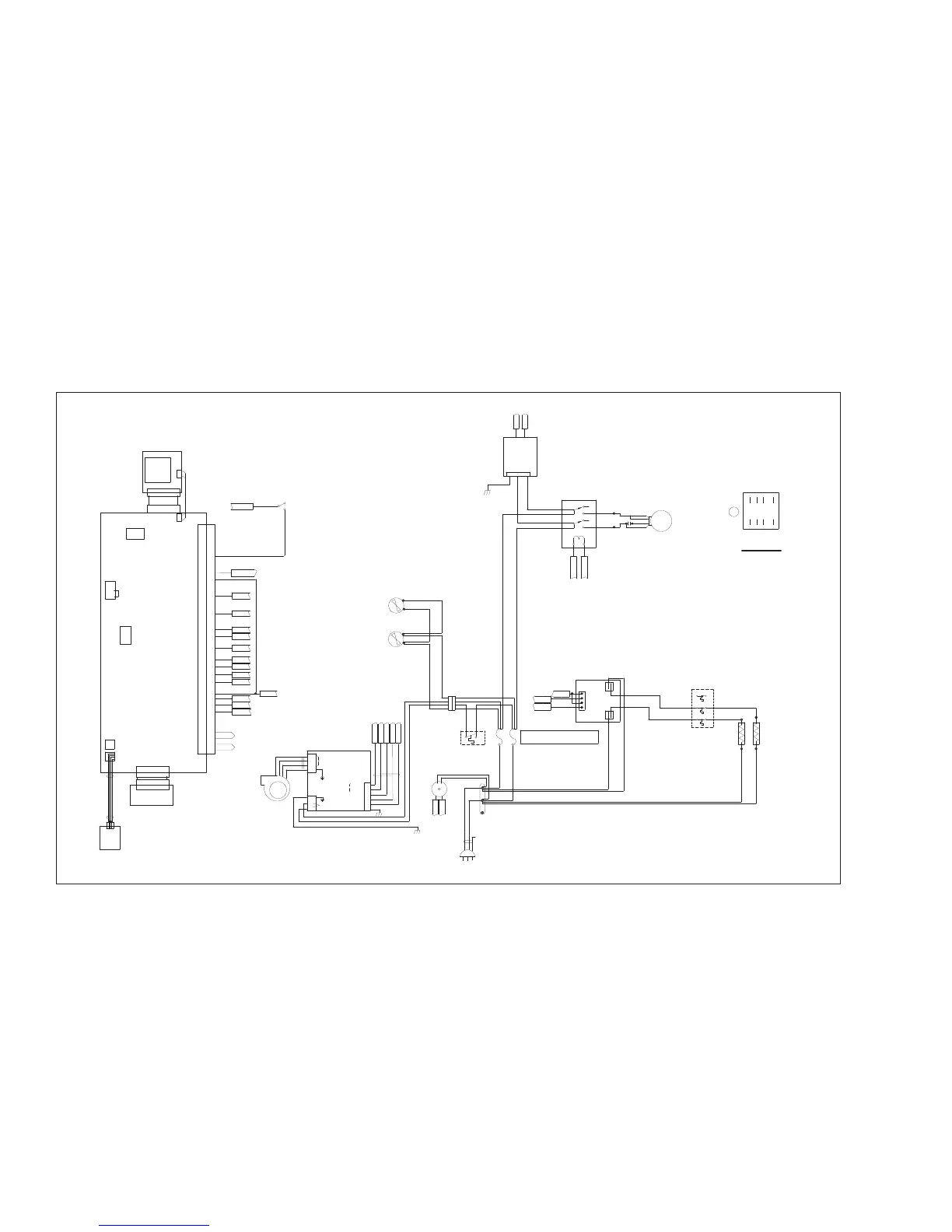
HIGH H BATCH SCHEMATIC
 : High h Batch Schematic
BL 3
BR 4
GY 1
G
Y 2
BR 4
BL 3
BR 6
B
R 5
BL 8
BL 7
BR 13BL 17
B
L 9
BR 10
BR 12
BR 11
B
R 14
BL 16
BL 15
1
1
2
2
3
3
4
4
BL 18
BR 19
BR 20
BR 21
BL 22 BL 24 BL 23
BL 28
BL 27
BL 25
BL 26
C2/C3
BR 29
F1 F2
F1: 12 AMPS CLASS CC (100595)
F2: 12 AMPS CLASS CC (100595)
RD-19
1
2
1
2
OR-13
BK-33
OR-13
BK-33
OR-6
2500 WATTS @ 208 V
17.30 OHMS
HX ELEMENT (HHB-8107)
B2
A2
B1
A1
K5
K4
2
1
-
B
+
RD-19
RD-16
RD-16
RD-24
BK-25
WH-31
BK-32
OR-9
RD-24
BK-25
WH-31
BK-32
BK-20
A
-
+
WH-301
WH-28
WH-301
BK-22
B
K-22
OR-6
WH-30
BK-20
WT-27
WT-27
WT-28
PINOUT
RELAY ASSY
K1
OR-9
O
SCILLATING RACK MOTOR
O
SCILLATING RACK RELAY, K1
RD - 19
1
2
BLUE
BLUE
WHT
RED
0.1uF 700V
(HHB-8135)
(101273)
(
101206)
-V
SUPPLY
+V
P
OWER
2
4VDC
L
N
E1
F
AN2 (COOLING)
NO
C
(102086)
OT 2 - 120F
NC
D
OOR SWITCH
NO
C
VOLTAGE MODULE
22
12
C
C
32
C
21
11
NC
NC
31
NC
MANUAL RESET
OT1
G
SOLID STATE RELAY (DUAL)
(
100516)
(100783)
FAN1 (COOLING)
(
100516)
(100516)
(101286)
K6-B (VOLTS MOD OUT)
29 29
KEYPAD
14
2
1
P4
21
P6
-
-
21
J6
-
-
-
-
14
14
--
--
2
1
J4
-
-
-
--
14
-
-
-
-
-
CC
40
39
THERMOCOUPLES
EC
37
36
38
BMSC (4) (COM RTN)
32
34
33
35
BMSC (3) (ENABLE OUT)
31
K4 (B-) (CONV OUT)
30
A(-)
C(+)
CC
40
39
A(-)
C(+)
EC
37
36
38
32
34
33
35
31
30
17
1-9
23
26
27
28
CT
BMSC 0-10V OUT
BMSC COMM (2)
24
25
20
-24V PS IN
MAG
-24V MONITOR RTN
-24V P&S INTER RTN
22
21
J6
19
18
11
2
14
16
15
+24V PS IN
ASPEN
3
13
12
VOLT MODUAL IN
8
BMSC SEL
P3
1
9
BMSC (9) (STATUS OK)
HX STATUS IN
1
0
5
MONITOR (NO) INTER IN
6
7
17
23
26
27
28
24
25
20
22
21
19
18
11
14
16
15
13
12
8
9
1
0
5
6
7
1
2
3
4
32
P5
1
1
25 26
21
P2
21
P
5
--
--
2
1
25
-
26
-
25 26
-----
-----
21
CN3
-
-
--
2
625
-
-
-
--- -
---- -
6
4 X 128 DOTS
32
CN2
V
FD DISPLAY
2
3
4
1
3
1
2
VAC IN
I/O COM
I/O COM
200-240
STATUE OK
6
4
5
SPD CMD
ENABLE
I/O COM
0-10V
3
2
1
3
4
M1 BLK
1
2
OUT
240 VAC
3 PHASE
BMSC
MTR
BLWR
-24V (VOLT MODULE RTN)
M2 RED
M3 WHITE
GREEN
A
9
7
B
3
6
4
1
A
7
4
1 3
6
9
B
cavity air
RJ11
RJ11
SMART CARD CONNECTOR
(100506)
(103023)
CABLE, SMART CARD

Table of Contents

Related product manuals