EasyManua.ls Logo

TYCROP SMOOTHFLOW - Page 50

TYCROP SMOOTHFLOW
56 pages
Print Icon
To Next Page IconTo Next Page
To Next Page IconTo Next Page
To Previous Page IconTo Previous Page
To Previous Page IconTo Previous Page
Loading...
48
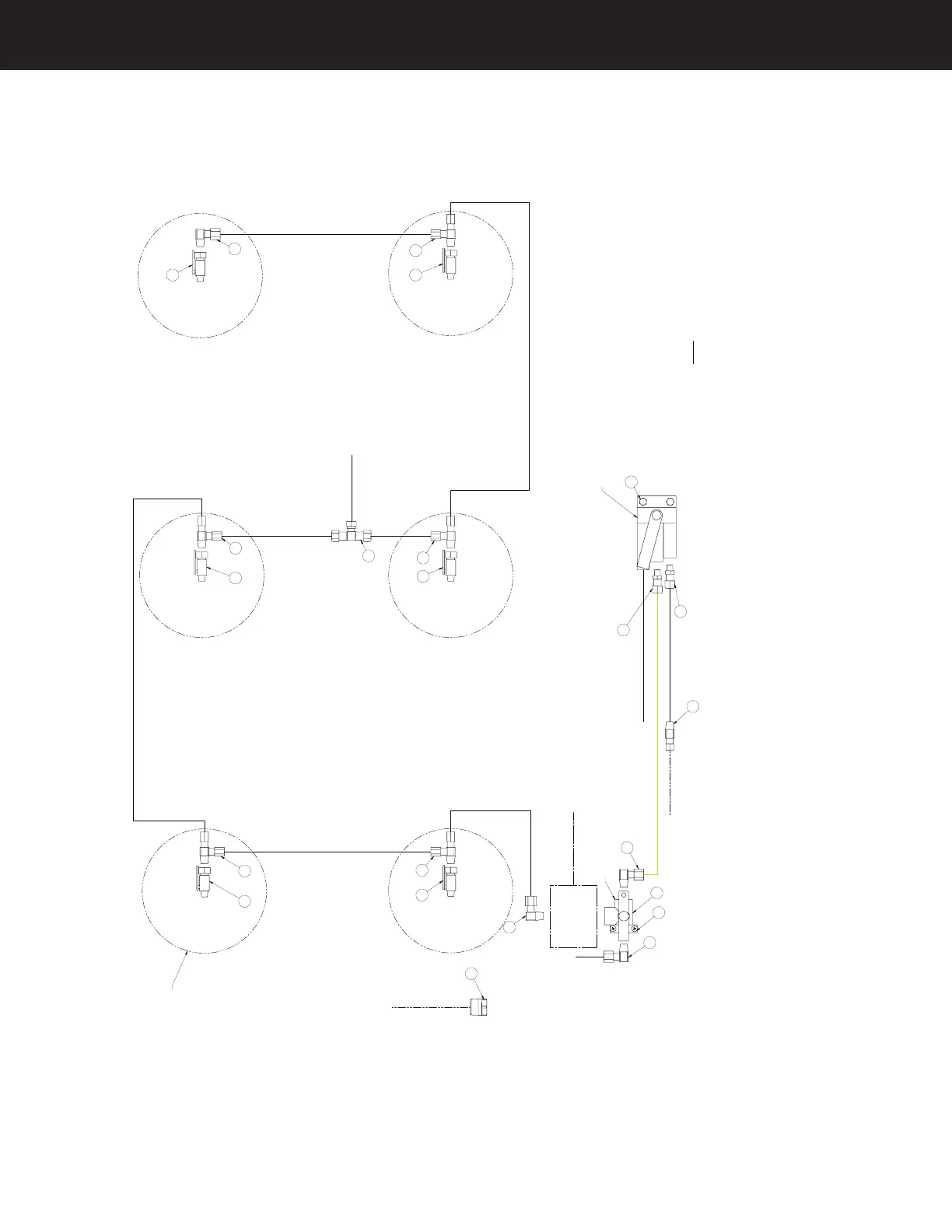
Schematics
Ride Height Schematic
Drawing No. 1104-2761 | Revision 02
LEVELING VALVE
INSTALL ON CENTER OF AXLE #2
6 13
6 13
13
6
6
13
6 13
6
7
14
EXH
7
7
7
4
4
9
2X
15
EXHUAST
2
2X
AIR SPRING
CONTROL VALVE
TO ACCESSORY TANK
3
1
TO ACCESSORY TANK
DRIVER SIDE
AXLE #1
AXLE #2 AXLE #3
AIR BAGS (REF ONLY)
TO AIR SCALE
TO DUAL AIR SCALE
IF EQUIPPED
NOTES:
ALL AIR BRAKE TUBING SYNFLEX 3250-06 SAE J844 TYPE B
1.
NYLON 11 (3/8" OD) BLACK.
AIR BRAKE TUBING MUST BE ARRANGED TO ELIMINATE
2.
ELBOWS, CLOSE BENDS, REDUCER FITTINGS, UNNECESSARY
LINE LENGTHS, WHERE POSSIBLE.
MAXIMUM RECOMMENDED AIR BRAKE SYSTEM PRESSURE
3.
IS 125 PSI.
ALL HOSES 3/8" UNLESS NOTED OTHERWISE
4.