EasyManua.ls Logo

USSC 5660 - Dimensions; Spécifications

USSC 5660
80 pages
Print Icon
To Next Page IconTo Next Page
To Next Page IconTo Next Page
To Previous Page IconTo Previous Page
To Previous Page IconTo Previous Page
Loading...
6
SPÉCIFICATIONS
Spécificationsdechauffage:
Tauxdecombustion:*43900BTU/hou5,1lbs.(2,3kg)decarburantparheure
Capacitédetrémie:55lbs.(24,9kg).
*Enfonctiondelaqualitéetdelavaleurcalorifiquedesgranulésdecarburant.
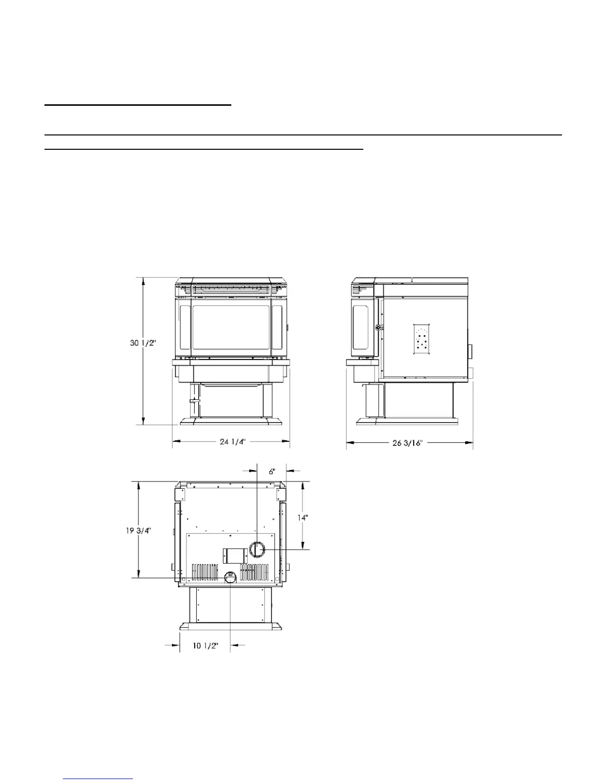
DIMENSIONS
Figure1

Related product manuals