EasyManua.ls Logo

USSC 5660 - Page 61

USSC 5660
80 pages
Print Icon
To Next Page IconTo Next Page
To Next Page IconTo Next Page
To Previous Page IconTo Previous Page
To Previous Page IconTo Previous Page
Loading...
21
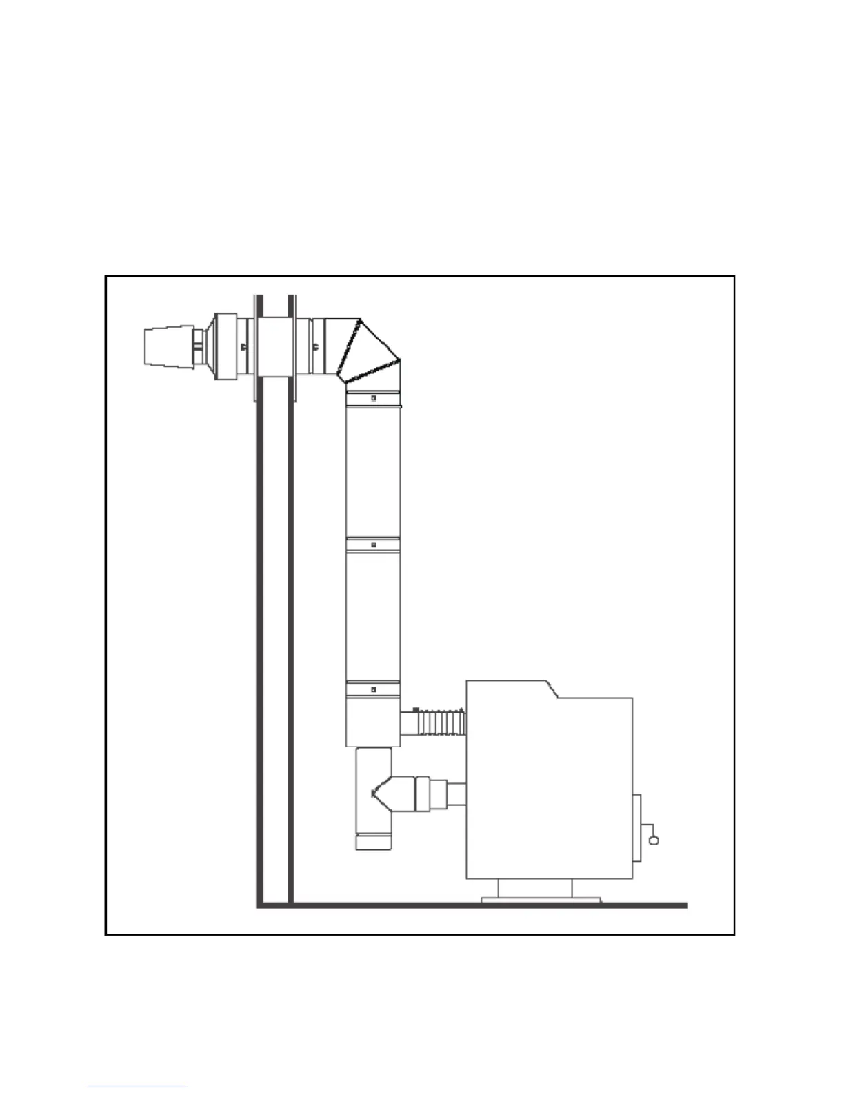
INSTALLATIONDUCHAUFFAGEDEPIÈCE‐suite
SYSTÈMEDEVENTILATIONDIRECTTEMPDESELKIRKPOURPOÊLESÀ
GRANULÉS
ImagesfourniesparSelkirk
KITDETERMINAISONMONTANTÀSORTIEHORIZONTALE
Figure12

Related product manuals