EasyManua.ls Logo

UTICA BOILERS PEG-C - Ratings, Data and Dimensions

UTICA BOILERS PEG-C
28 pages
Print Icon
To Previous Page IconTo Previous Page
To Previous Page IconTo Previous Page
Loading...
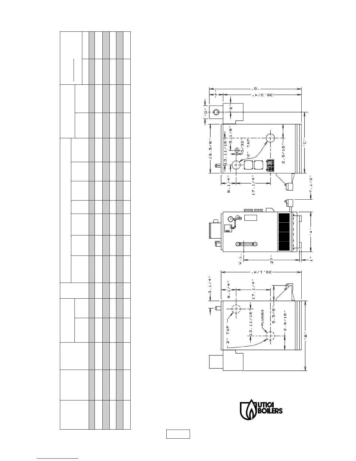
FRONT VIEWLEFT SIDE VIEW RIGHT SIDE VIEW
3741801 PAGE 26 REV: 15, July 2003
RATINGS, DATA, AND DIMENSIONS
NATURAL GAS STEAM BOILERS
*A.G.A Heating Net I=B=R** Gas Dimensions WATER CONTENT Annual Fuel
Boiler Input Capacity Steam Rating Inlet (GALLON CAPACITY)
Utilization Efficiency
Number Btu/Hr. Btu/Hr. Btu/Hr. Sq. Ft. Size A B C D E F G To Water To LWCO (AFUE)
& Damper & Damper Line Line Elect Ign Std. Pilot
PEG112C 112,500 90,000 67,500 281 1/2 14.1/4 27.5/8 24.1/8 5 3.1/2 6 44.3/4 4.8 3.0 81.0 78
PEG150C 150,000 120,000 90,000 375 1/2 17.1/8 28.5/8 24.5/8 6 4 6.1/2 45.1/4 6.0 3.7 81.0 78
PEG187C 187,000 151,000 113,300 472 1/2 20 29.5/8 25.1/8 7 4.1/2 7 45.3/4 7.0 4.4 81.0 78
PEG225C 225,000 181,000 135,800 556 3/4 22.13/16 30.5/8 25.5/8 8 5 8 46.3/4 8.4 5.0 81.0 78
PEG262C 262,500 212,000 159,000 663 3/4 25.5/8 30.5/8 25.5/8 8 5 8 46.3/4 9.5 5.8 81.0 78
PEG300C 299,999 243,000 182,300 760 3/4 28.1/8 31.5/8 26.1/8 9 5.1/2 10 48.3/4 10.7 6.4 81.0 78
NOTE: For altitudes above 2,000 ft. ratings should be reduced at the rate of 4% for each 1,000 ft. above sea level,
The MEA number for the PEG series is 17-79.
Electrical service to be 120 Volts, 15 Amps, 60 Hz.
**For equivalent square feet of radiation, divide I=B=R output by 240.
STANDARD EQUIPMENT: Crafted Boiler, Drafthood, Low Water Cut-off (Probe Type), Deluxe Jacket, Wiring, Automatic Vent Damper, Ported Stainless Steel Burners,
Blocked Vent and Roll-Out Safety Switches, Gas Valve, Pilot, Pressure High Limit Control, 2-2" Supply Tapping-L.H. Plugged, 2-2" Return Tappings-L.H. Plugged.
Packed in Separate Carton:Pop Safety Valve and Boiler Drain.
OPTIONAL EQUIPMENT: Electronic water feeder
The Ratings marked Net I=B=R indicate the amount of equivalent direct cast iron radiation each boiler will take care of under normal conditions and thermostatic control. The
Net I=B=R Steam Ratings shown are based on a piping and pickup allowance of 1.333. Proper allowance has been made for piping and pickup in accordance with the
factors shown in the I=B=R Standard as published by The Hydronics Institute.
Selection of boiler size should be based upon Net BTU per Hour of the connected radiation and piping.
The manufacturer should be consulted before selecting a boiler for installations having unusual piping and pickup requirements.
In line with it's policy of product improvement, Utica Boilers reserves the right to make changes without notice.

Related product manuals