EasyManua.ls Logo

Veeder-Root TLS-350 Series - Figure 5. TLS-300;Proplus;Emc Basic Console Dimensions and Designated Conduit Knockouts

Veeder-Root TLS-350 Series
91 pages
Print Icon
To Next Page IconTo Next Page
To Next Page IconTo Next Page
To Previous Page IconTo Previous Page
To Previous Page IconTo Previous Page
Loading...
Console Installation Mounting the Console
11
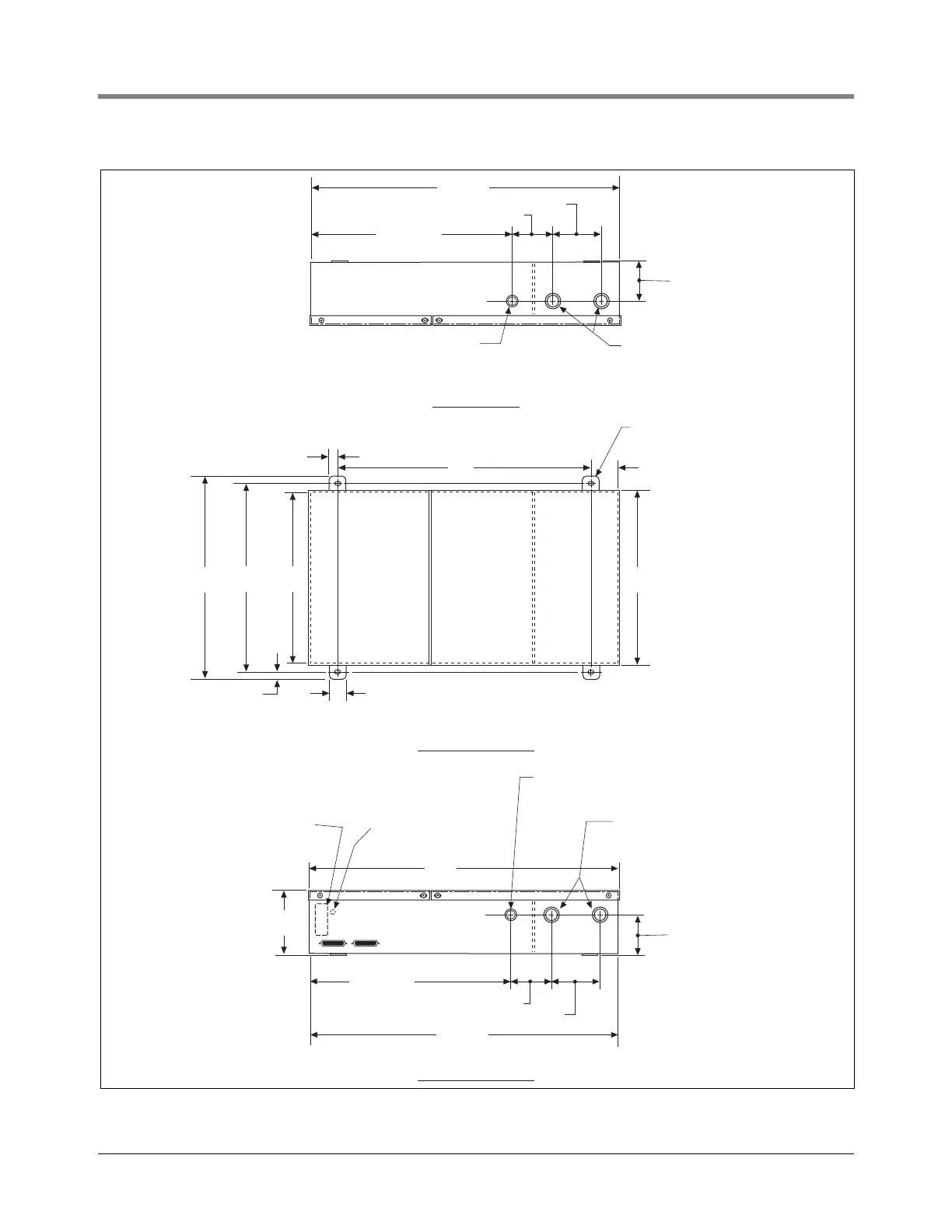
Figure 5. TLS-300/ProPlus/EMC Basic Console Dimensions and Designated Conduit Knockouts
FRONT VIEW
20''
4-1/8''
2-1/2''
2-1/16''
3-9/16''
13-1/16''
19-3/4''
BOTTOM VIEW
consoles\300cndim.eps
2-1/16''
3-9/16''
19-3/4''
13-1/16''
2-1/2''
16''
1-7/8''
11-1/4''11''13''
1/2'' TYP.
1'' TYP.
12''
1/2'' TYP.
Conduit Entries To Intrinsically
Safe Area (3/4, & 1'' I.P.S.
Knockouts Typ. - 4 Places)
Conduit Entry To Power Area
(1/2, & 3/4'' I.P.S Knockout Typ. - 2 Places)
7/8'' x 2-3/8'' knockout -
(Connector access for
optional Comm module)
knockout for
#4 x .312
Comm module
mounting screw
Conduit Entry
Conduit Entries To
Intrinsically Safe Area
Mounting Flanges W/
1/4'' x 3/8''
TOP VIEW

Table of Contents

Other manuals for Veeder-Root TLS-350 Series

Related product manuals