EasyManua.ls Logo

Velocity PHANTOM II - Page 43

Velocity PHANTOM II
100 pages
Print Icon
To Next Page IconTo Next Page
To Next Page IconTo Next Page
To Previous Page IconTo Previous Page
To Previous Page IconTo Previous Page
Loading...
43110331-01 - 5/20
PHTM II
Installation, Operating & Service Instructions
13 Field Wiring (continued)
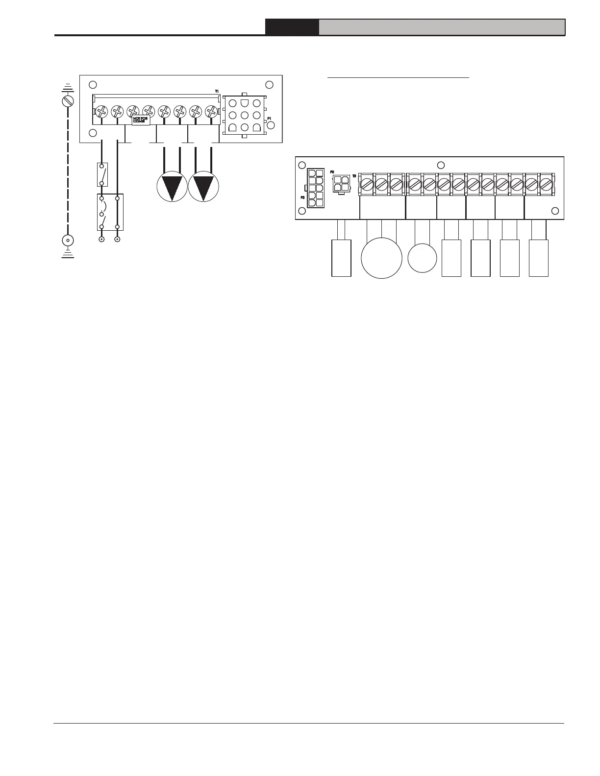
From left to right, connections on terminal
strip are:
• 120VAC L - Hot
• 120VAC N - Neutral
• Boiler Pump L - Not used on Combi
• Boiler Pump N - Not used on Combi
• System Pump L - Hot
• System Pump N - Neutral
• Auxiliary Pump L - Hot
• Auxiliary Pump N - Neutral
3. Pump outputs
A. System Pump: (field supplied) Circulates
water through radiation. System pump
is always on when boiler is responding
to CH demand. Refer to Table 16-14 for
alternate system pump output functions.
Maximum recommended current draw for
system pump is 1.5A.
B. Auxiliary Pump: ("Recirculation pump")
(field supplied) Circulates water through a
DHW recirculation loop. Refer to Table 16-14
for more information and alternate auxiliary
pump output functions. Maximum
recommended current draw for auxiliary
pump is 1.5A.
C. Maximum combined current draw for all
circulators is 5A. Internal boiler pump
draws a maximum of 2A.
From left to right, connections on terminal strip
are:
• Heat T’Stat - 24VAC heating thermostat
(R - 24V “Hot”)
• Heat T’Stat - 24VAC heating thermostat
(W - Energized on Call for Heat)
• Heat T’Stat - 24VAC heating thermostat
(C - 24V Common)
• Aux T’Stat - 24VAC heating thermostat
(R - 24V “Hot”)
• Aux T’Stat - 24VAC heating thermostat
(W - Energized on Call for Heat)
External Limit - Field supplied low voltage
safety limit contacts (1)
• External Limit - Field supplied low voltage
safety limit contacts (2)
• 0-10 V 4-20mA – not used
• 0-10 V 4-20mA – not used
• Outdoor Sensor - Optional Outdoor
Temperature Sensor (1)
• Outdoor Sensor - Optional Outdoor
Temperature Sensor (2)
• Header Sensor - Optional Header Sensor (1)
• Header Sensor - Optional Header Sensor (2)
Figure 13-2: 120 VAC Connections
120V
Line
Boiler
Pump
Aux
Pump
GND
L N L N L N L N
System
Pump
L2
Power Supply
120/60/1
Overcurrent
Protection/
Disconnect
Service
Switch
L1
Low Voltage Connections
Figure 13-3: Low Voltage Connections
Heat
T'stat
Aux
T'stat
Ext.
Limit
0-10V
4-20mA
Header
Sensor
Outdoor
Sensor
24 VAC
LWCO
Low Voltage Connections
R W C R W
+ -
LWCO
(if needed)
24 Volt Heating
Thermostat
Auxilliary
Thermostat
External Limit
(if needed)
Wired
Connection
Header/
Recirculation
Sensor
Outdoor
Sensor
1. All low voltage field connections to boiler are
made on Low Voltage Connections terminal strip
(see Figure 13-3) located on left side of bottom
panel. Route all low voltage wiring through
conduit knock out holes located on left side in
front of terminal strip.

Other manuals for Velocity PHANTOM II

Related product manuals