EasyManua.ls Logo

Velocity PHANTOM II - Internal Wiring Diagrams; Ladder and Schematic Wiring Diagrams

Velocity PHANTOM II
100 pages
Print Icon
To Next Page IconTo Next Page
To Next Page IconTo Next Page
To Previous Page IconTo Previous Page
To Previous Page IconTo Previous Page
Loading...
83110331-01 - 5/20
PHTM II
Installation, Operating & Service Instructions
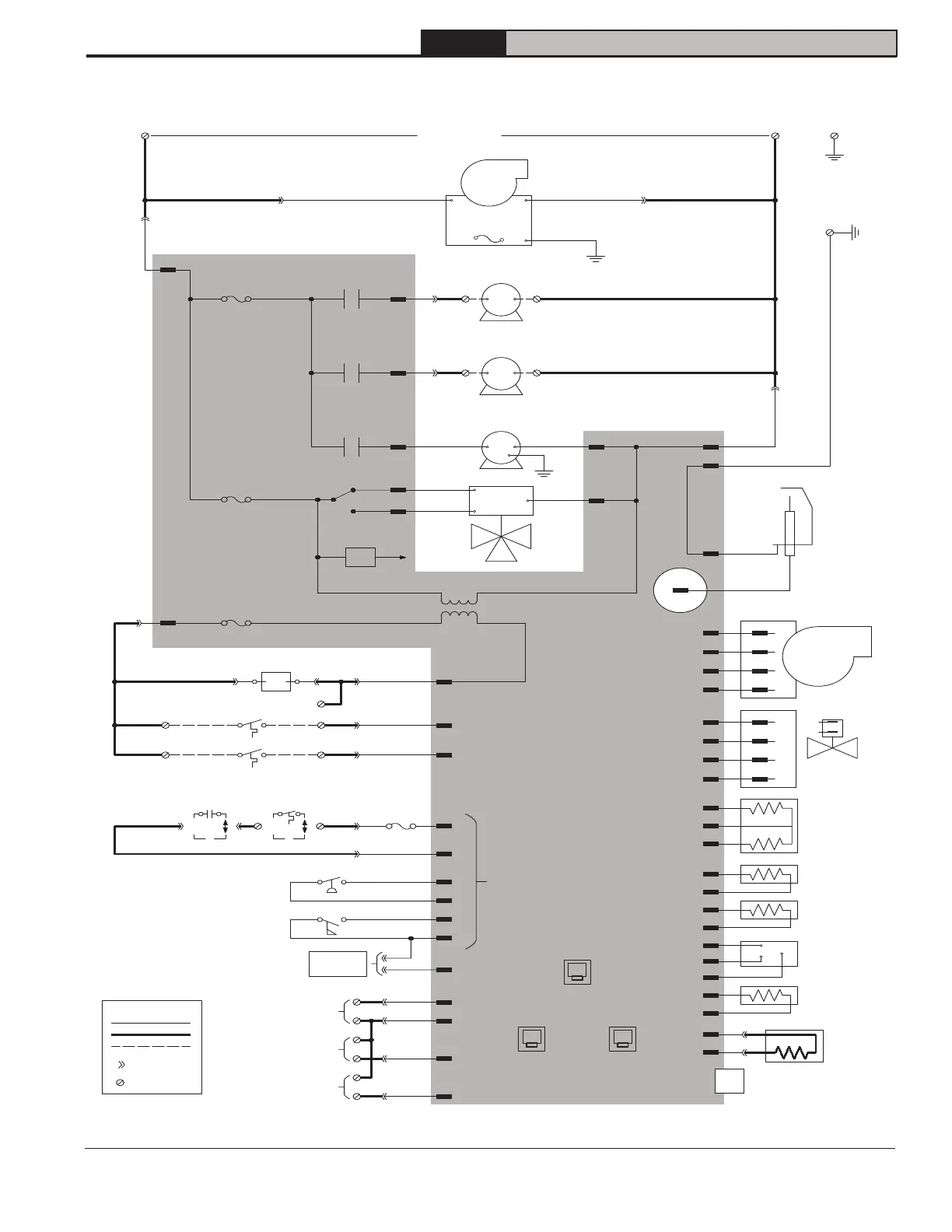
20 Internal Wiring Diagrams
Wiring Legend
24VAC
Earth
Ground
Gas Valve
Heat T’stat
Boiler Flow
Switch
Factory Wire Harness
Field wiring
Connector
Screw Terminal
120VAC/60Hz/1Ph
(Line Voltage)
Combustion
Blower
Internal
Overcurrent
Protection
Thermal
Fuse
Air Proving
Switch
N
PCB Trace/Components
3-Way Valve
5W, .05A
L
P1-2
P1-8
X1-5
Fuse T5.0A
(slow blow)
Fuse T1.0A
(slow blow)
Fuse T0.5A
(slow blow)
Jumper (Std) Jumper (Std)
LWCO
External Limit
(if used)
P3-3 P3-4
Ext.
Limit
Ext.
Limit
OR
P2-4
P3-1 P3-2
LWCO Power
(If Used)
1 2
OR
X1-8
X1-10
X1-9
X2-2
X2-1
Pump Outlet B
Boiler Pump
2.0A
P1-7
L
Pump Outlet A
System Pump
1.5A
P1-4
L
Pump Outlet C
Auxilliary Pump
1.5A
N
N
DHW
CH
AC to DC
Switch Mode
Power Supply
X6-1
P1-9
P2-1
P1-1
X1-6
X1-7
X2-3
X1-1
Chassis
Ground
X1-2
Ignitor/
Flame Rod
Combustion
Blower
(DC Conn.)
Spark
(DC+)
(Tach.)
(PWM)
(DC-)
HT-1
X3-1
X3-2
X3-3
X3-4
(V2-)
(V2+)
(V1-)
(V1+)
X3-5
X3-6
X3-7
X3-8
+
+
Supply Sensor
Return Sensor
Flue Sensor
DHW Sensor
DHW Flow
X5-1
X5-3
X5-2
X5-4
X5-5
X5-6
X5-7
X5-8
X5-9
X5-10
+
X5-11
X5-12
BCC
X4-4
X4-10
P4-2
P4-1
Model Key
C
P2-3
W
P2-6
R
X6-2
X6-3
Aux T’stat
W
P2-7
R
X6-4
(Recirculation Timer
Or Zone 2 T'stat)
X6-10
+
P2-2
X6-11
X4-1
+
X4-2
X4-5
X4-6
+
Remote Monitoring
Device Power
(optional)
X4-8
RJ11
(MB1)
Controller Front
RJ45
(MB2 & MB3)
RJ45
(MB2 & MB3)
Boiler Control Rear
Limit
String
24VDC
P2-10
X6-6
X6-7
P2-5
X6-8
P2-9
X6-9
P2-8
Outdoor
Sensor
Header Sensor/
Recirculation Sensor
0-10 VDC/
4-20 mA
Boiler Control
S4962VS1014
[System or Zone 1 Pump]
[Recirculation, DHW or Zone 2 Pump]
Boiler Chip Card (BCC)
Model Specific
Protected Parameter Reference
P1
X7
X8-1 X8-2
MB3
Modbus Communication
Boiler to Boiler
MB2
Modbus Communication
Energy Management
System (EMS) Interface
+
+
+
+
+
Figure 20-1: Ladder Diagram

Other manuals for Velocity PHANTOM II

Related product manuals