EasyManua.ls Logo

Vertiv Liebert - Page 30

Vertiv Liebert
40 pages
Print Icon
To Next Page IconTo Next Page
To Next Page IconTo Next Page
To Previous Page IconTo Previous Page
To Previous Page IconTo Previous Page
Loading...
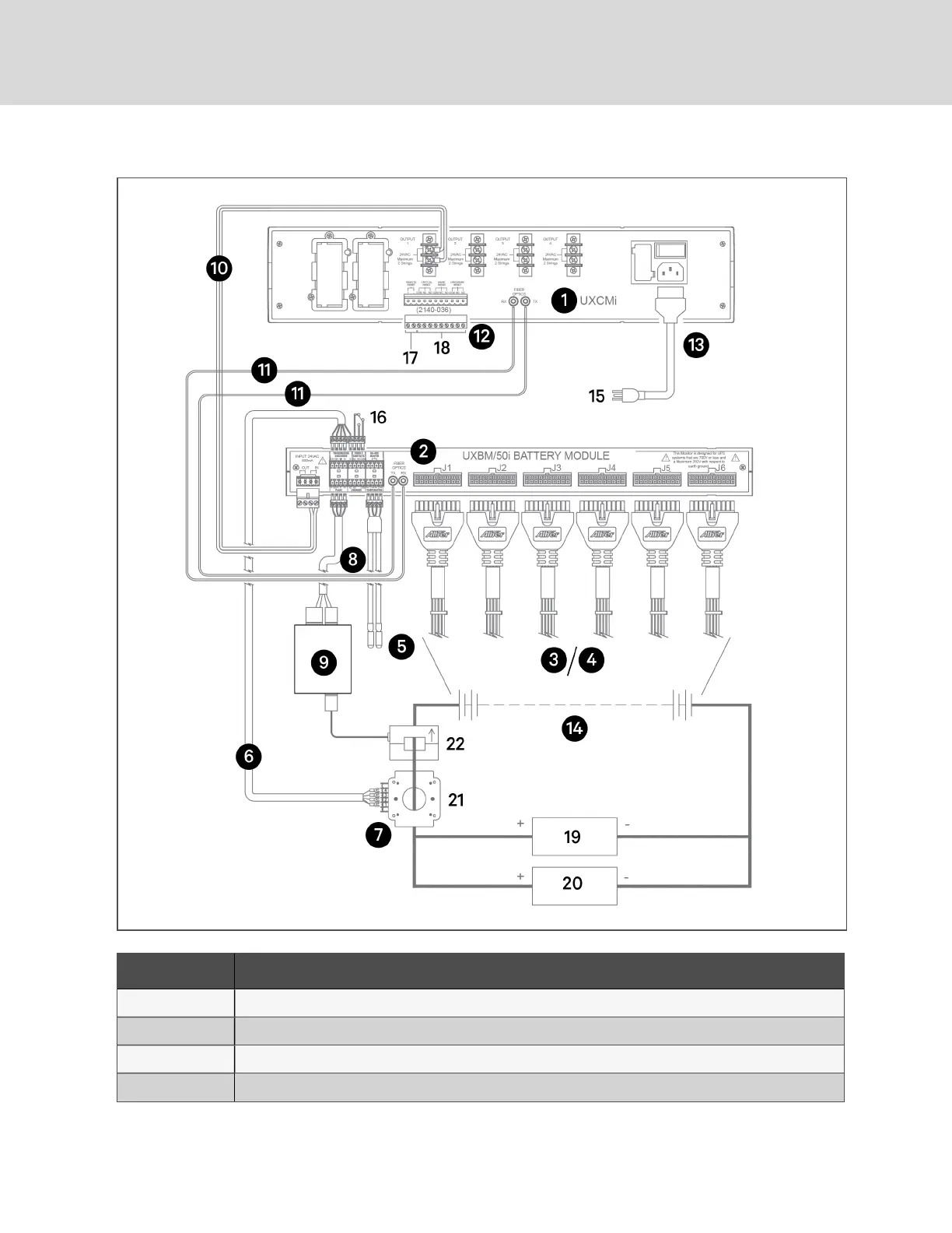
Figure 3.13 Battery Monitoring System Overview
Item Description
1 Control module
2 Battery module
3 Resistive load connection (depending on battery configuration)
4 Voltage sense and interior sense connections (depending on battery configuration)
Vertiv | Liebert® Large UPS Battery System Installer Guide
26

Other manuals for Vertiv Liebert

Related product manuals