EasyManua.ls Logo

Viessmann Vitogate 300 - Clearance Dimensions

Viessmann Vitogate 300
40 pages
Print Icon
To Next Page IconTo Next Page
To Next Page IconTo Next Page
To Previous Page IconTo Previous Page
To Previous Page IconTo Previous Page
Loading...
5
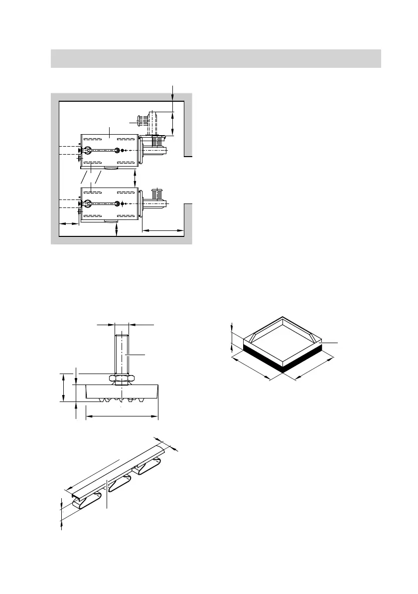
D
200
a
b
500
500
(400)
500
(50)
(400)
A B
C E
A
Boiler
B
Burner
C
Adjustable anti-vibration feet
D/E
Anti-vibration boiler supports
Note
The hinge pins can be repositioned so
that the boiler door opens to the left.
Dimensions in brackets are minimum
clearances.
C
100
20
31
M16
D
c
d
e
d
c
e
E
Clearance dimensions
5614 451 GB

Other manuals for Viessmann Vitogate 300

Related product manuals