EasyManua.ls Logo

Viessmann Vitolig 200 - Installation Diagrams

Viessmann Vitolig 200
65 pages
Print Icon
To Next Page IconTo Next Page
To Next Page IconTo Next Page
To Previous Page IconTo Previous Page
To Previous Page IconTo Previous Page
Loading...
4 Vitolig 200
8
7
6
8
7
6
M M
qI
qP
4
3
2
9
5
qW
qE
qT
qQ
Vitolig 100/200 Buffer storage unit
Vitocell 050
Vitocell−B
or
qR
qO
1
qZ
qU
Oil− and gas−fired
Vitocell
qQ
boiler
41
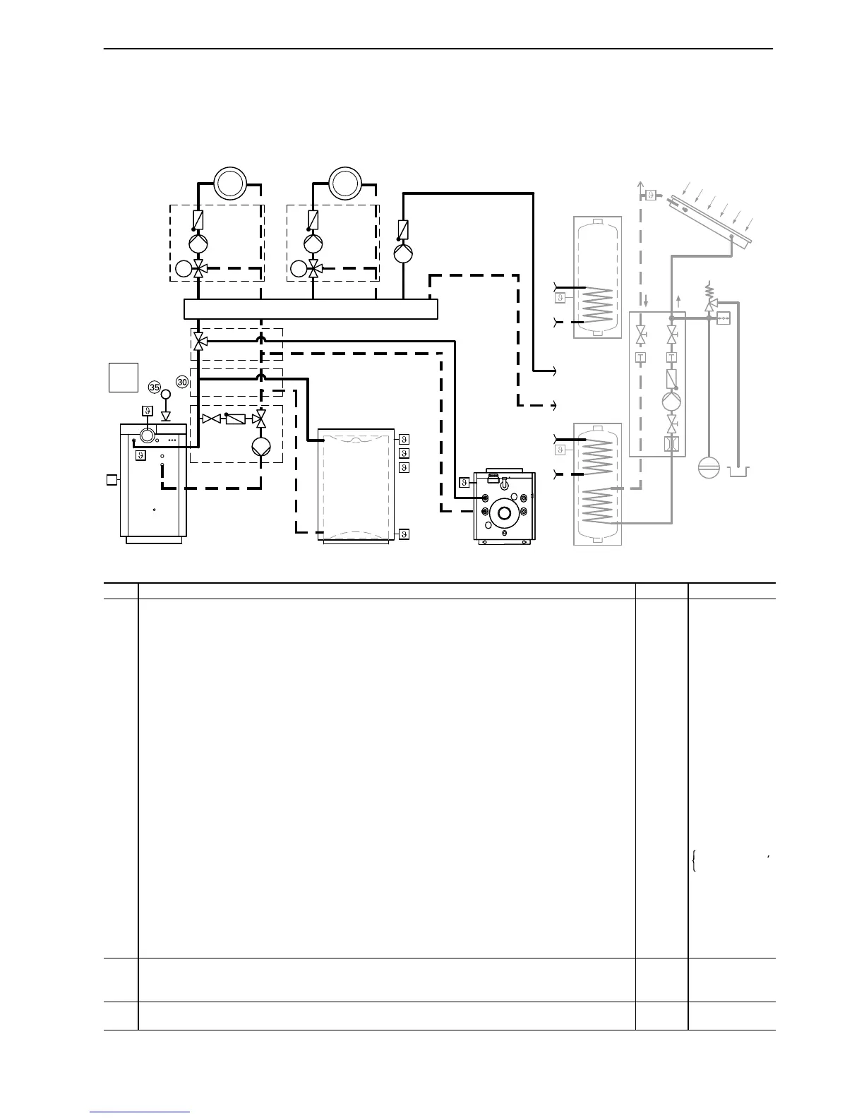
Installation diagram with an oil− or gas−fired boiler  see application example 2
Required equipment
Item Description Number Part no.
1 Contact thermostat (for Vitolig 100: minimum temperature controller, part of standard delivery) 1 7404730
2 Return temperature raising facility 1 7159062
3 Boiler circuit pump (part of standard delivery of return temperature raising facility) 1 
4 Mixing valve with check valve (part of standard delivery of return temperature raising facility) 1 
5 Circulation pump for DHW cylinder with check valve 1 7339467
6 Modular Divicon 1(2) see price list
7 Heating circuit pump (part of standard delivery of modular Divicon) 1(2) 
8 Heating mixer 3 (part of standard delivery of modular Divicon) with
extension kit for Vitotronic200 or
extension kit for Vitotronic300
1(2)
1
1(2)

7450650
7450069
9 Flow and return distributor for modular Divicon 1 see price list
qP Connection unit changeover valve R1"
R1¼"
1
1
7159407
7159408
qQ DHW cylinder temperature sensor 1 Standard del’y
Control units
qW Control thermostat and
sensor well (items 12, 13 and 14 in this sensor well)
1
1
7151989
7265060
qE Control thermostat 1 7151989
qR Temperature sensor in top of heating water buffer storage unit (not for Vitolig 100) 1 Standard del’y
qT Temperature sensor at bottom of heating water buffer storage unit (not for Vitolig 100)
and sensor well
1
1
y
Vitolig200
7265060
qZ Control thermostat (install sensor into boiler sensor well) 1 7151989
qU Connection box 1 7408901
eP Connection unit heating water buffer storage unit 1 7159406
eT Low water limiter (low water indicator) 1 9529050
eZ Thermostatic drain valve 1 7143845
When connecting to a common chimney
qI Flue gas temperature monitor to lockout burner 1 7143844
qO Door interlock switch 1 7159777
qI
Additional devices required with Vitolig 100
Flue gas temperature monitor to lockout boiler circuit pump 3
1 7143844
Connection of solar heating components  see Technical Guide for Solar Heating Systems, application example 1.
5822241 GB

Related product manuals