EasyManua.ls Logo

Viscount Physis - Page 9

Viscount Physis
110 pages
Print Icon
To Next Page IconTo Next Page
To Next Page IconTo Next Page
To Previous Page IconTo Previous Page
To Previous Page IconTo Previous Page
Loading...
7
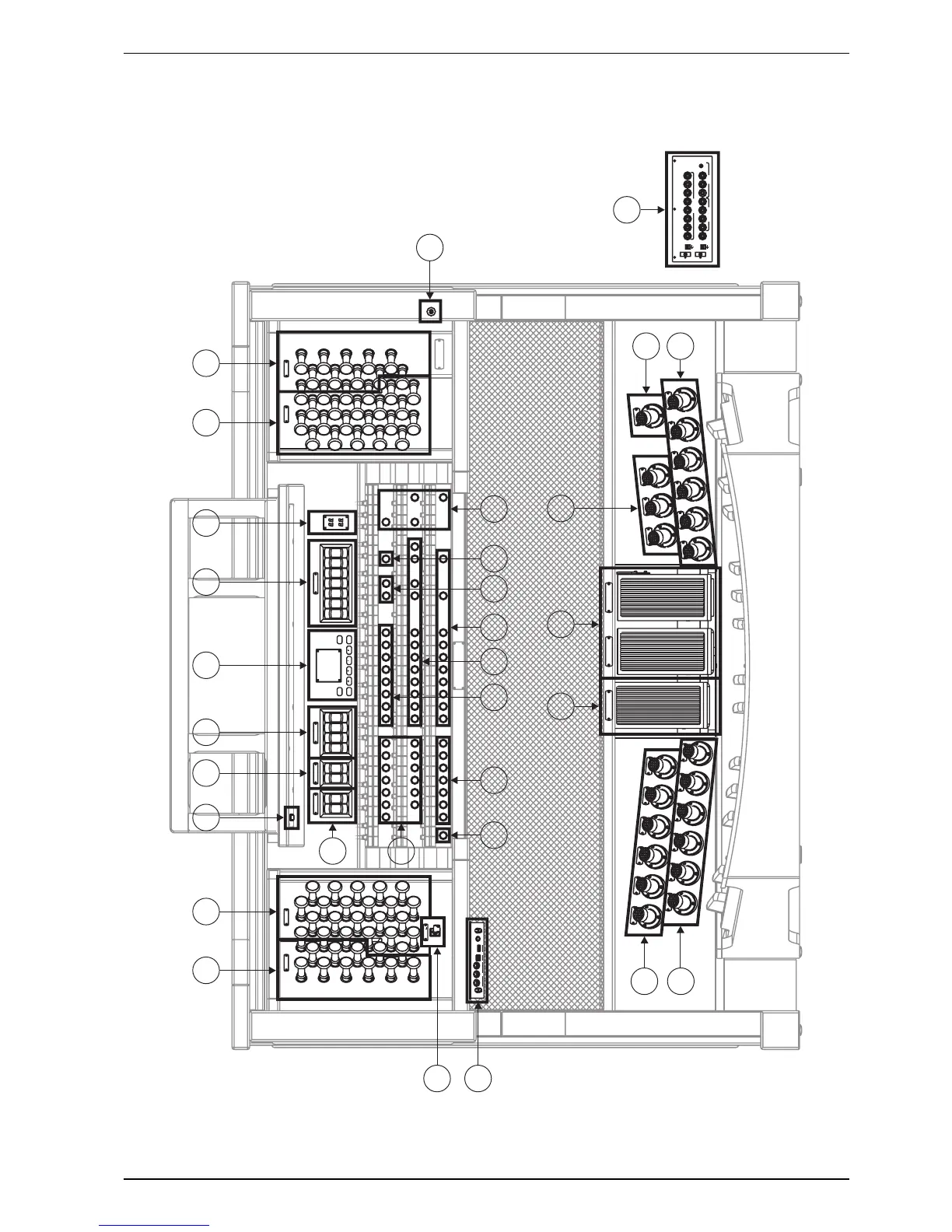
Viscount Physis OrgansReference Manual
UNICO 500
Schalmei
4'
8'
Trompete
16'
Posaune
Contra
Bombarde
32'
Clarine
4'
8'
Trompete
Fagott
16'
I/P
Coupler
II/P
Coupler
III/P
Coupler
IV
Mixture
4'
bass
Choral-
Oktav-
bass
8'
Prinzipal-
16'
bass
32'
Contra
Bourdon
8'
Gedackt
16'
Gedackt
Subbass
16'
8'
Dulciana
Prinzipal
16'
Coupler
III/II
Tremulant
Coupler
I/II
V
Cornet
V
Mixture
2
3
Quinte
Super-
oktave
2'
4'
Oktave
Spitzflöte
4'
Unda
Maris
8'
8'
Gedackt
Prinzipal
8'
Hohlflöte
8'
Rohr-
gedackt
8'
4'
Rohrflöte
2
3
Nasard
2'
Blockflöte
3
5
Terz
Tremulant
Mixture
IV
4'
Gemshorn
Oktave
4'
Gamba
8'
Prinzipal
8'
Bourdon
16'
Vox
Celeste
8'
Tremulant
II
Sesquialtera
1'
Sifflöte
1
3
Larigot
4'
Offenflöte
8'
Flöte
Prinzipal
8'
4'
Prestant
Doublette
2'
Mixture
IV
III/I
Coupler
4'
Clarion
Humana
Vox
8'
Oboe
8'
Trompete
8'
16'
Contra
Trompete
Regal
16'
8'
Spanische
Trompete
8'
Krumm-
horn
Man. II Man. II Man. III Man. IIIPedal
Cello Harp Strings Chimes Celesta
Man. I
Piano
Man. I
Harpsich.
On
Reed Mixtur Pedal Man. II Man. III Man. I
Console
On
Speaker
Ext.
CRESCENDO
M. BANK
PEDAL MAN. II
POWER
0
1
AMPLIFICAT. CANCEL MIDI
SEQUENC.
VOLUMES
FIELD
EXIT
ENTER
FIELD VALUE VALUE
ORCHESTRA
MAN. III MAN. I
UNICO 500
viscount
CRESCENDO MAN. I MAN. III
56789101112
GEN. SUB 1 2 3 4 L(+R) R MIC GAIN
PROG. OUT
PROG. OUT INPUTOUT
MASTER
VOLUME
THRU OUT
MIDI
IN REVERB
VOLUME
USB PHONES
MEM.
BANK
MEM.
BANK
S
HR1234
78910
HR1234
56
HR 1 2 534 6P
HR 1 2 534 6P
HR 1 2 534 656 P C
T
ENC
A.P
III
III I
M.SOLO
M.SOLO
M.SOLO
O.SOLO
PREV NEXT
+-
1 2
7
22
20
14
8
9 11 4 5
23
15 19 21
17
18 21 17
24
27
14
25
28
10 12 13
-
+
EXT.
+12V DC
300 mA
-
+
EXT.
+12V DC
300 mA
21
14
6
26

Table of Contents

Related product manuals